EasyManua.ls Logo

AERMEC NRB Series - Connecting the Auxiliary Control Board

AERMEC NRB Series
56 pages
Print Icon
To Next Page IconTo Next Page
To Next Page IconTo Next Page
To Previous Page IconTo Previous Page
To Previous Page IconTo Previous Page
Loading...
47
J1.G0
J19.ID16H
J19.ID15H
J19.ID15
J19.IDC15
J19.ID16
J20.ID17
J20.ID18
J20.IDC17
J4.VG
J1.G
e J1.G
e J2.VG
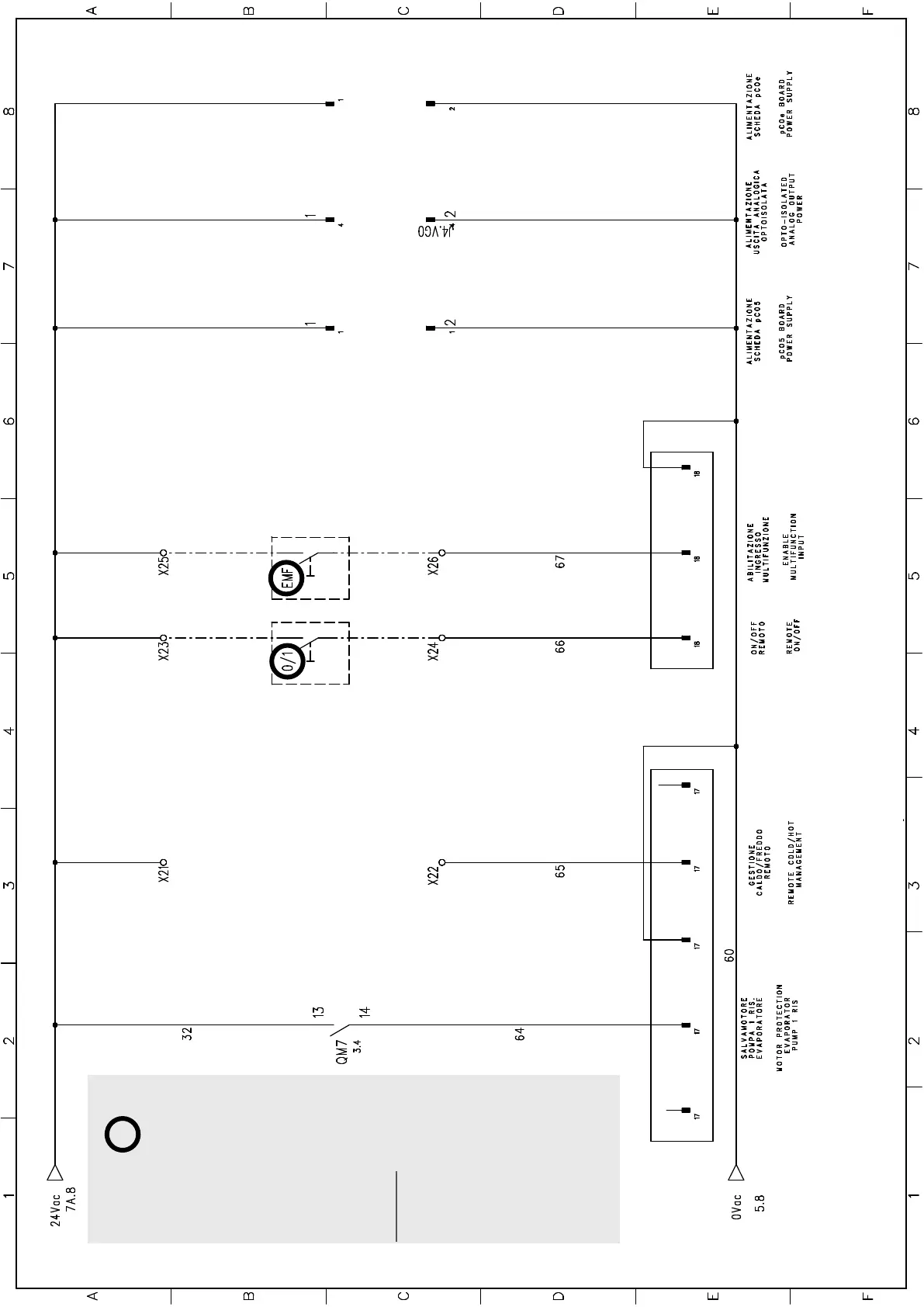
CONNECTING THE AUXILIARY CONTROL BOARD
Key:
the auxiliary control board points highlighted with a circle are
the ones that the installer can use.
0/1 remote ON/OFF
EMF Multi-purpose input (just the enabling)
chiller power limiting
setpoint (heating/cooling) variation
NB: for any other details, refer to
the complete electric diagram on
the machine.

Related product manuals