EasyManua.ls Logo

AERMEC RePuro 450 - Compatibility between the Wired Control Panel and the Electrical Wall Boxes

AERMEC RePuro 450
56 pages
Print Icon
To Next Page IconTo Next Page
To Next Page IconTo Next Page
To Previous Page IconTo Previous Page
To Previous Page IconTo Previous Page
Loading...
51
IREPPY - 1404 - 4238051_01
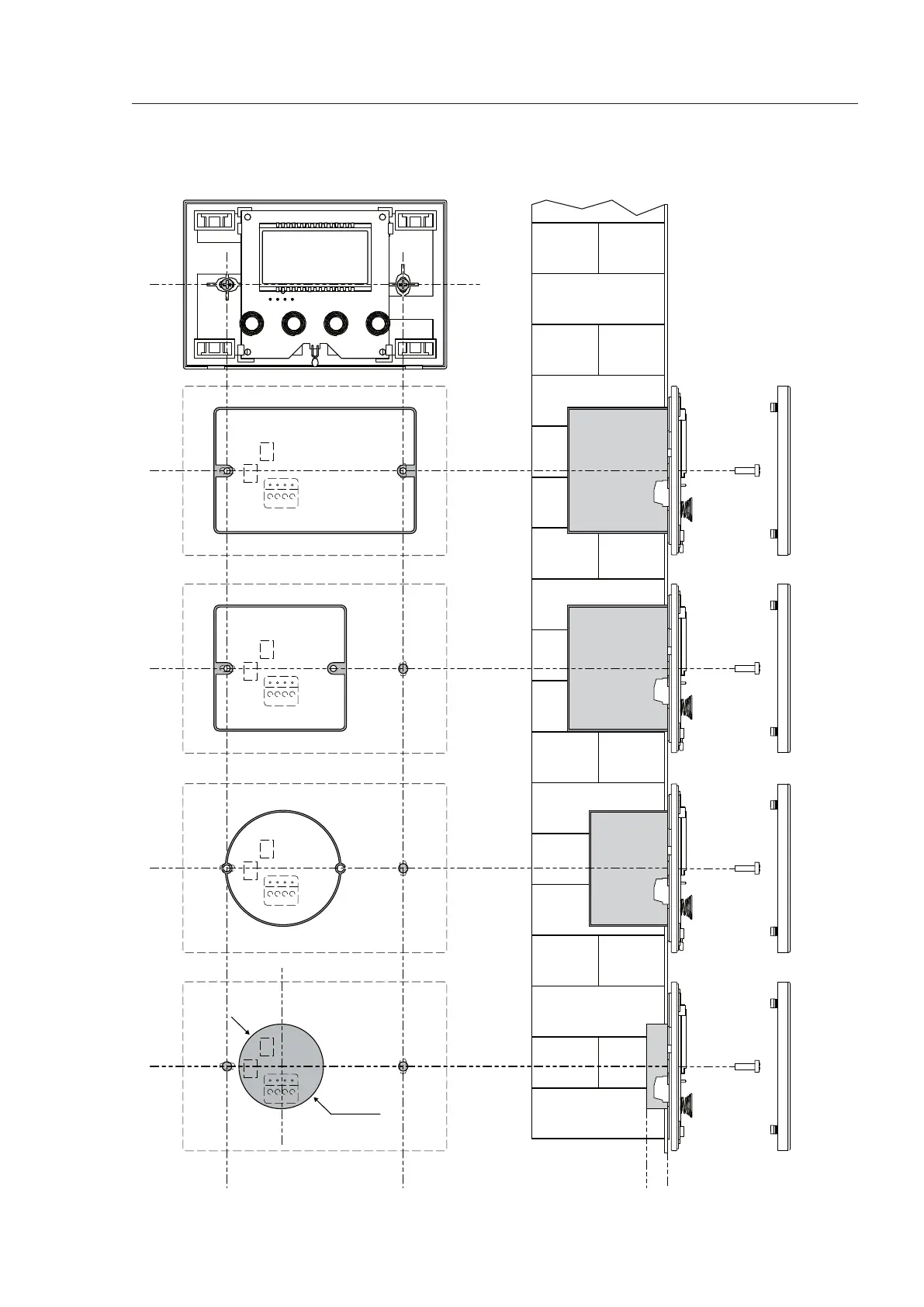
Wall
mounted
Wall
mounted
82,5mm
26mm
>10mm
Ø40mm
Type
503E
Type
503E
Type
502E
Type
502E
Type
M20
Type
M20
14.2. COMPATIBILITY BETWEEN THE WIRED CONTROL PANEL AND THE ELECTRICAL WALL BOXES
The wired control panel can be mounted to various types of electrical wall boxes.
Several examples are shown below:

Other manuals for AERMEC RePuro 450

Related product manuals