EasyManua.ls Logo

AGA marvel ML15CL - Page 77

Default Icon
96 pages
Print Icon
To Next Page IconTo Next Page
To Next Page IconTo Next Page
To Previous Page IconTo Previous Page
To Previous Page IconTo Previous Page
Loading...
13
"F"
"D"
"E"
"H"
"J"
"G"
4
7
8"
(12,4 cm)
1
1
4"
(3,2 cm)
21
1
2"
(54,6cm)
6
15
16"
(17,6 cm)
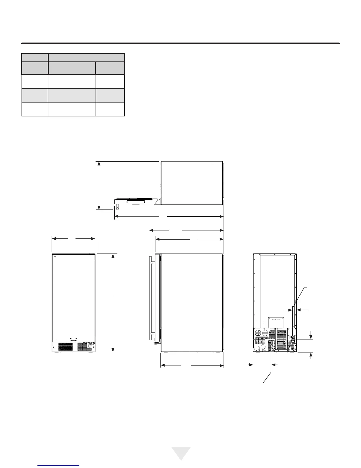
DIMENSIONES DEL PRODUCTO
DATOS DEL PRODUCTO
MODELO
REQUISITOS
ELÉCTRICOS #
PESO DEL
PRODUCTO
ML15C*S 115V/60Hz/15A
105 lbs
(47,7 kg)
ML15C*P 115V/60Hz/15A
105 lbs
(47,7 kg)
ML15C*G 115V/60Hz/15A
105 lbs
(47,7 kg)
* Para instalar modelo (P) con la cara de la puerta alineada con
las puertas de los armarios adyacentes, el espesor del panel dec-
orativo del cliente no puede exceder de ¾ de pulgada (19mm).
** La abertura de instalación mínima requerida debe ser mayor
que la altura ajustada del gabinete.
# Se necesita un circuito dedicado de 15 amperes con conexión
a tierra. Cumpla con todos los códigos de edicación locales
cuando instale el circuito eléctrico y el artefacto.
Figura 19
(S) Puerta maciza
Línea de
suministro
de agua
drenaje por
gravedad

Table of Contents