EasyManua.ls Logo

Air Quality Engineering AutoClean - Page 5

Default Icon
27 pages
Print Icon
To Next Page IconTo Next Page
To Next Page IconTo Next Page
To Previous Page IconTo Previous Page
To Previous Page IconTo Previous Page
Loading...
5
1.50
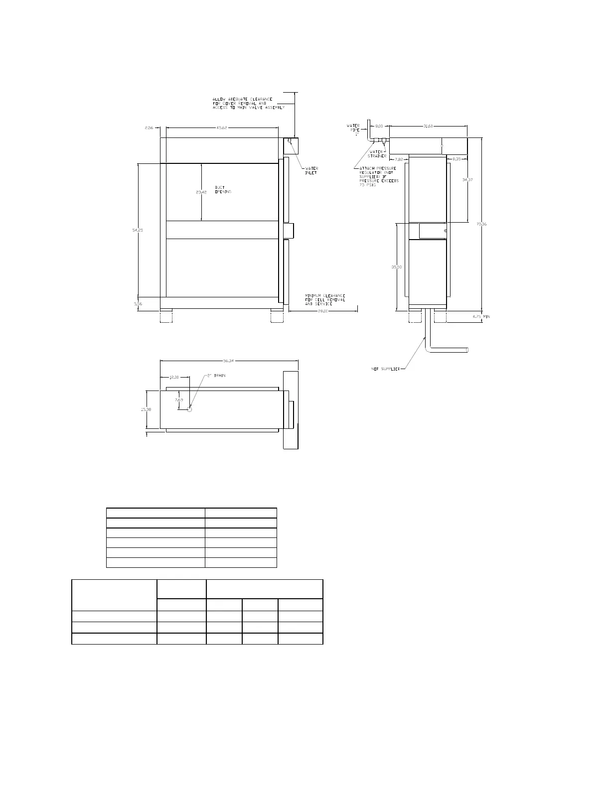
AutoClean 8000
METRIC CONVERSION FORMULA
Ins. to mm Ins. x 25.4
Lbs. to kgs. Lbs. x .455
Ins. w.g. to kPa Ins. w.g. x .2488
CFM to m³/h CFM x 1.6992
Ft² to m² Ft² x .0929
SHIPPING
WEIGHT
INSTALLED
WEIGHT
Lb.
Kg.
Lb.
Kg.
AutoClean 2000
290 131.5 240 108.9
AutoClean 4000
390 177.0 340 154.2
AutoClean 8000
600 272.2 530 240.4

Related product manuals