EasyManua.ls Logo

Airstream FLYING CLOUD 2023 - Solar Panel Wiring

Airstream FLYING CLOUD 2023
112 pages
Print Icon
To Next Page IconTo Next Page
To Next Page IconTo Next Page
To Previous Page IconTo Previous Page
To Previous Page IconTo Previous Page
Loading...
Maintenance
2023 Flying Cloud 8-31
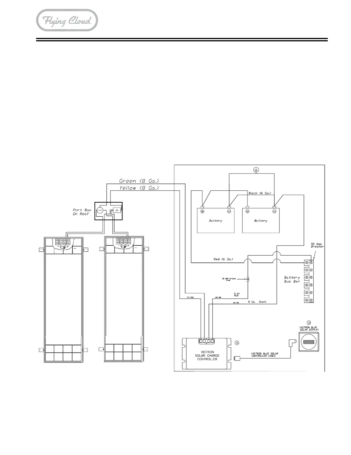
Solar Panel Wiring
For your convenience Airstreams has installed a 3 port
easy install box to the roof of the trailer, as well as, a
plug for a portable solar panel at the front of the trailer
near the battery box. The roof port now allows for easy
install of an aftermarket solar panel. Simply plug the
power cord from the solar panel into the 3 port box.
A Cat 5-patch cord for a solar panel display, if supplied
with the after market unit, runs from the battery buss
bar to an area just behind the Seelevel Monitor display.
The best way to reach the Cat 5 cable is to remove
the Seelevel Monitor. The solar panel display can be
mounted in the area near the Seelevel Monitor panel
by routing the proper hole size. The Cat 5 wire is then
plugged into the solar display panel.
NOTE
The yellow wire must be fused with a 35-amp in-line
fuse at the 12-volt positive. All wires are identied
with labels at all locations.
The solar panel has a charge controller that should be
mounted close to the battery buss bars, as the battery
leads and Cat 5 wire are hooked into it to sense the
actual battery charge.
The following diagram depicts the way Airstream wires
the solar system on factory-installed units and is the
recommended wiring for use of the pre-wire system.

Table of Contents