EasyManua.ls Logo

Airstream Interstate 2020 - Page 104

Airstream Interstate 2020
126 pages
Print Icon
To Next Page IconTo Next Page
To Next Page IconTo Next Page
To Previous Page IconTo Previous Page
To Previous Page IconTo Previous Page
Loading...
Maintenance
9-18 2020 Interstate
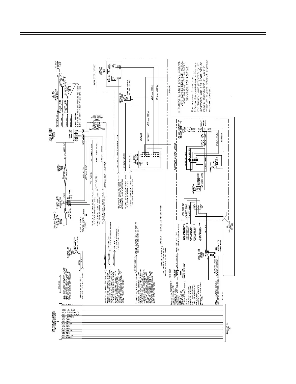
12-Volt Schematic

Table of Contents

Related product manuals