EasyManua.ls Logo

Airwell CD17 - Page 16

Airwell CD17
32 pages
Print Icon
To Next Page IconTo Next Page
To Next Page IconTo Next Page
To Previous Page IconTo Previous Page
To Previous Page IconTo Previous Page
Loading...
14
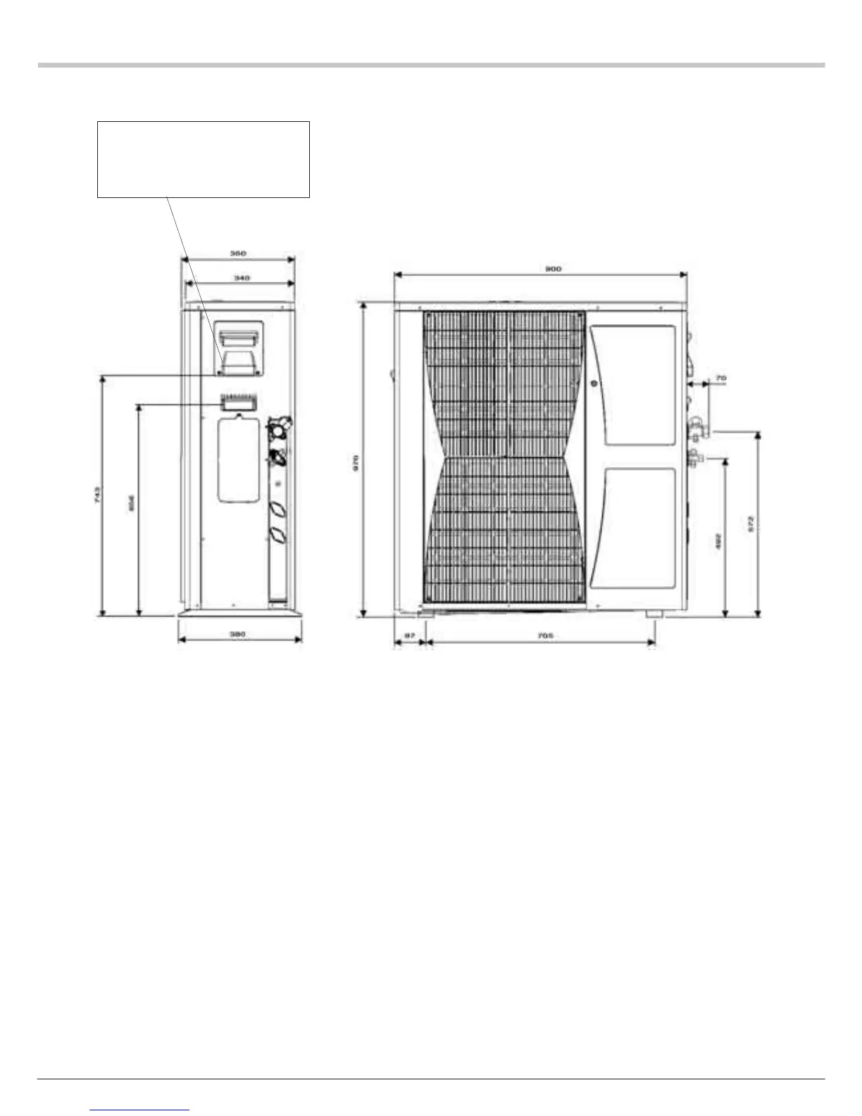
Split system gainable à pression -
Ductable pressurized split system -
Split-system für Kanalanschluß unter Druck
GC43
GC 43 RC
Entrée de câbles d’alimentation électrique
par le couvercle latéral.
Power supply cable inlet through the side.
- Vannes de service pour raccordement des
tubes frigorifiques :
GC43: 3/4" et 3/8"
Eintritt der Speisekabel durch die seitliche
Klappe
- Service valve for connection of refrigerant
lines:
GC43: 3/4" and 3/8"
- Betriebsventile zum Anschluß der
Kältemittelleitungen
GC43: 3/4" und 3/8"

Related product manuals