EasyManua.ls Logo

Allen-Bradley PowerFlex 20-750-20COMM - Page 101

Allen-Bradley PowerFlex 20-750-20COMM
302 pages
To Next Page IconTo Next Page
To Next Page IconTo Next Page
To Previous Page IconTo Previous Page
To Previous Page IconTo Previous Page
Loading...
Rockwell Automation Publication 750-IN001O-EN-P - October 2014 101
Lift and Mount the Drive Chapter 3
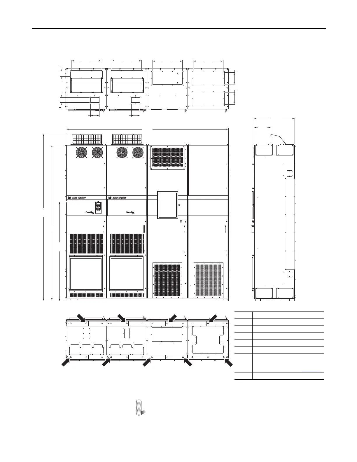
Figure 62 - IP20, NEMA/UL Type 1, MCC Style Cabinet, Floor Mount Frame 9
Enclosure Code B - 600 mm Deep Drive with Cabinet Options Bay and Wiring Bay.
M12 (1/2 in.) Property Class 8.8 anchoring hardware recommended to
fasten the drive cabinet through its internal mounting angle to the
foundation. Anchor bolts may be pre-located and embedded in the
foundation prior to instillation.
600
(23.6)
240
(9.4)
440
(17.3)
183
(7.2)
183
(7.2)
180
(7.1)
440
(17.3)
440
(17.3)
127
(5.0)
440
(17.3)
127
(5.0)
76
(3.0)
68
(2.7)
2453
(96.6)
2300
(90.6)
1464
(57.6)
2400
(94.5)
No. Description
Power wiring conduit plates.
Control wiring conduit plates.
Optional exhaust hood.
Optional HIM.
Option bay disconnect switch access door.
Interlock override switch.
For instructions and precautions refer to
the Hardware Service Manual, 750-TG001
.
Recommended nine-hole anchoring.
BOTTOM
TOP

Table of Contents

Related product manuals