EasyManua.ls Logo

Allen-Bradley PowerFlex 20-750-20COMM - Page 84

Allen-Bradley PowerFlex 20-750-20COMM
302 pages
To Next Page IconTo Next Page
To Next Page IconTo Next Page
To Previous Page IconTo Previous Page
To Previous Page IconTo Previous Page
Loading...
84 Rockwell Automation Publication 750-IN001O-EN-P - October 2014
Chapter 3 Lift and Mount the Drive
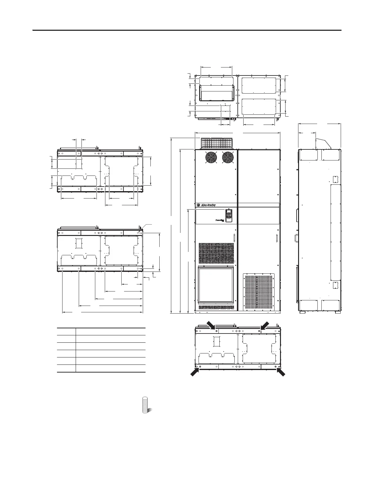
Figure 45 - IP20, NEMA/UL Type 1, MCC Style Cabinet, Floor Mount Frame 8
Enclosure Code B with P14 - 600 mm Deep Drive with Wiring Bay.
M12 (1/2 in.) Property Class 8.8 anchoring hardware recommended to
fasten the drive cabinet through its internal mounting angle to the
foundation. Anchor bolts may be pre-located and embedded in the
foundation prior to instillation.
2453
(96.6)
2300
(90.6)
600
(23.6)
240
(9.4)
300
(11.8)
531
(20.9)
669
(26.3)
900
(35.4)
1131
(44.5)
ø18.0
(0.71)
542
(21.3)
43
(1.7)
69
(2.7)
500
(19.7)
460
(18.1)
398
(15.7)
141
(5.6)
127
(5.0)
344
(13.5)
76
(3.0)
1200
(47.2)
440
(17.3)
440
(17.3)
127
(5.0)
76
(3.0)
68
(2.7)
183
(7.2)
183
(7.2)
1464
(57.6)
No. Description
Power wiring conduit plates.
Control wiring conduit plates.
Optional exhaust hood.
Optional HIM.
Recommended four-hole anchoring.
BOTTOM
TOP
BOTTOM

Table of Contents

Related product manuals