EasyManua.ls Logo

Allen-Bradley PowerFlex 20-750-APS - Control Transformer Connections - Common DC Input Drives

Allen-Bradley PowerFlex 20-750-APS
302 pages
Print Icon
To Next Page IconTo Next Page
To Next Page IconTo Next Page
To Previous Page IconTo Previous Page
To Previous Page IconTo Previous Page
Loading...
238 Rockwell Automation Publication 750-IN001O-EN-P - October 2014
Chapter 5 I/O Wiring
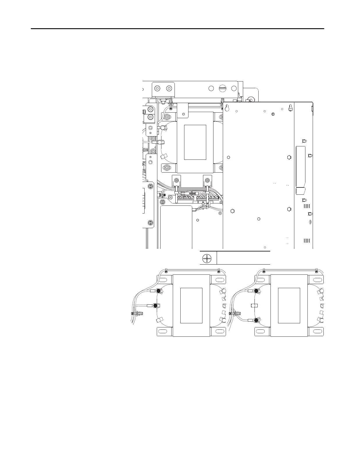
Control Transformer
Connections - Common DC
Input Drives
The Common DC Input drive control transformer is factory set to 120V AC
input. A 240V AC input setting is also available by changing primary wire
connections.
Figure 129 - Control Transformer Voltage Settings - Floor Mount Frames 8…10
120 Volt Tap
240 Volt Tap
P2
1.8 N•m (16 lb•in)

Table of Contents

Related product manuals