EasyManua.ls Logo

Allied 4AC17 - Page 16

Default Icon
17 pages
Print Icon
To Next Page IconTo Next Page
To Next Page IconTo Next Page
To Previous Page IconTo Previous Page
To Previous Page IconTo Previous Page
Loading...
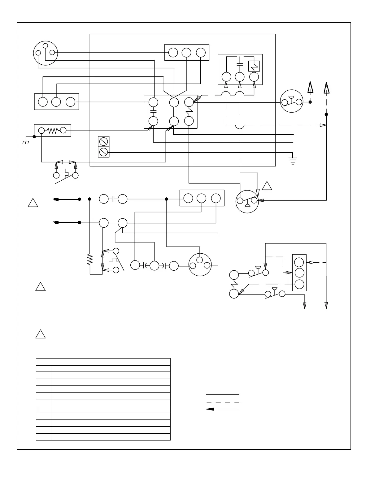
Page 16 of 17 508255-01Issue 2229
NOTE-
IF ANY WIRE IN THIS APPLIANCE IS REPLACED,IT
MUST BE REPLACED WITH WIRE OF LIKE SIZE,
RATING, INSULATION THICKNESS, AND TERMINATION.
DENOTES OPTIONAL COMPONENTS
LINE VOLTAGE FIELD INSTALLED
CLASS II VOLTAGE FIELD WIRING
1
GROUND
LUG
S4
HIGH
PRESSURE
SWITCH
NOTE-
FOR USE WITH COPPER CONDUCTORS
ONLY. REFER TO UNIT RATING PLATE
FOR MINIMUM CIRCUIT AMPACITY AND
MAXIMUM OVERCURRENT PROTECTION SIZE
L1
1
F
C
H
2
31
R
S
C
PURPLE
BLACK
ORANGE
RED
YELLOW
OUTDOOR
FAN
BLACK
DUAL
CAPACITOR
L2
L1
208-230/ 60/
1
GROUND
TO 24 VAC POWER
SOURCE
20 VA MINIMUM
NEC CLASS 2
C
Y1
A4
TIMED OFF
CONTROL
COMPRESSOR
CONTACTOR
COMPRESSOR
CRANKCASE
HEATER
S40
K1-1
L2
208-230/ 60/
1
BLACK
YELLOW
RED
ORANGE
RED
BLACK
H
C
F
B4
C12
C S
R
B1
S40
RED
HR1
2
3
1
S4
K1
A4
TO 24 VAC
POWER SOURCE
20 VA MINIMUM
NEC CLASS 2
S87
C
Y1
YELLOW
2
YELLOW
BLACK
IF USING A4: CONNECT S4 TO TERMINAL 3 ON A4,
CONNECT Y1 TO TERMINAL 2 ON A4
2
S87
A4
CONTROL-TIMED OFF
KEY
COMPONENT
B1
B4
DESCRIPTION
C12
HR1
K1,-1
S4
S24
S40
S87
COMPRESSOR
MOTOR-OUTDOOR FAN
CAPACITOR-DUAL
HEATER-COMPRESSOR
CONTACTOR-COMPRESSOR
SWITCH-HIGH PRESSURE
SWITCH-LOSS OF CHARGE
TERMOSTAT-CRANKCASE
SWITCH-LOW PRESS, COMP 1
Figure 9. 4AC17 Wiring Diagram (PSC Condenser Fan)

Related product manuals