EasyManua.ls Logo

Allison HD 4060 - WT Wiring Schematics; General Notes

Allison HD 4060
396 pages
Print Icon
To Next Page IconTo Next Page
To Next Page IconTo Next Page
To Previous Page IconTo Previous Page
To Previous Page IconTo Previous Page
Loading...
WTEC II ELECTRONIC CONTROLS TROUBLESHOOTING MANUAL
Copyright © 1998 General Motors Corp.
PRIMARY
RETARDER
CONTROL
DEVICE
SECONDARY
RETARDER
CONTROL
DEVICE
(IF USED)
RESISTANCE
MODULE
OR PEDAL
INTERFACE
MODULE
RESISTANCE
MODULE
OR PEDAL
INTERFACE
MODULE
ABC ABC
133164135D
SEE
NOTE
1
SEE
NOTE
1
SEE
NOTE
3
SEE
NOTE
4
;
;
YELLOW
ORANGE
TURBINE SPEED HI
SUMP TEMP
ENGINE
SPEED
SENSOR
OIL LEVEL POWER
ALL HARNESS WIRING IS 18 AWG.
ANY WIRE NUMBER INCLUDING A LETTER HAS A SPLICED WIRE.
WIRE NUMBERS 101–134 ORIGINATE AT CONNECTOR A.
WIRE NUMBERS 135 AND GREATER ORIGINATE AT CONNECTOR B.
ALL SERIAL COMMUNICATIONS AND SPEED SENSOR WIRES ARE
TWISTED PAIRS [12–20 TWISTS PER FOOT (300 MM)].
300 SERIES WIRES INDICATE VIM HARNESS.
15 6 12 4
RELAY OUTPUT
WIRE #132
SERIAL COMMUNICATION INTERFACE B (–)
REMOTE SERIAL INTERFACE (+)
WHITE
VIOLET
OUTPUT FUNCTION (–) A 5
105 GREEN
INPUT FUNCTION (–) B 29
163 BLUE
OUTPUT FUNCTION (–) A 25
125 WHITE
OUTPUT FUNCTION (+) A 12
112 VIOLET
OUTPUT FUNCTION (–) A 32
132 ORANGE
OUTPUT FUNCTION (–) A 14
114 WHITE
INPUT FUNCTION (–) B 3
137 ORANGE
INPUT FUNCTION (+) A 19
119 YELLOW
INPUT FUNCTION (+) A 18
118 BLUE
INPUT FUNCTION (–)
ISO 9141 REQUEST INPUT (–)
B 19
153 YELLOW
INPUT FUNCTION (–) B 21
155 GREEN
REVERSE WARNING (–) A 13
113 WHITE
NEUTRAL START (+) A 23
123 VIOLET
IGNITION (+) B 12
146A YELLOW
DO NOT SHIFT (–) A 15
115 GREEN
SPEEDOMETER SIGNAL OUTPUT B 23
157
INPUT FUNCTION (–) B 20
154
INPUT FUNCTION (–) A 17
117 GREEN
142B WHITE
151B BLUE
BATTERY GROUND
B 18
143C BLACK
159 VIOLET
B 9
143A BLACK
BATTERY POWER
B 11
136C RED
B 2
136A RED
158 ORANGE
161B YELLOW
B 17
SERIAL COMMUNICATION INTERFACE A (+) B 8
REMOTE WAKE UP A 8
B 34
REMOTE SERIAL INTERFACE (–) B 26
NOT USED B 33
DIMMER INPUT 12V OR 24V B 24
B
A
C
E
K
J
H
A
1
7
2
3
6
4
5
8
9
10
151A
142A
146B
143D
136B
143B
108
168
160
YELLOW
VIOLET
(–) OUTPUT WIRE # 105
(–) INPUT WIRE # 163
(–) INPUT WIRE # 137
(+) INPUT WIRE # 119
(+) INPUT WIRE # 118
(–) INPUT WIRE # 153
(–) INPUT WIRE # 155
(–) INPUT WIRE # 154
(–) INPUT WIRE # 117
DIAGNOSTIC
TOOL
CONNECTOR
REMOTE SERIAL
INTERFACE
CONNECTOR
REMOVE OR CUT
JUMPER WIRE BETWEEN
TERMINALS 2 AND 3
ON PRIMARY REMOTE
SELECTOR.
(REMOTE SHIFT
SELECTOR)
SERIAL COMMUNICATION A (+)
SERIAL COMMUNICATION B (–)
SWITCHED
IGNITION
POWER
SIGNAL GROUND #161B
1
14
(–) INPUT WIRE # 126
AVAILABLE AFTER JULY 1, 1995
10
4
5
3
2
8
9
12
16
6
7
13
VEHICLE INTERFACE WIRING
(VIW) CONNECTOR
NOT USED
A 26
126 YELLOW
E 2
D 2
E 3
F 2
C 2
F 3
H 2
H 1
A 2
B 2
A 3
G 3
J 3
K 3
E 1
D 1
G 1
F 1
J 1
J 2
K 1
K 2
B 1
A 1
C 1
VEHICLE INTERFACE MODULE (VIM)
24V VIM’S HAVE 12V RELAYS FOR
NEUTRAL START AND RELAY
OUTPUT WIRE #112.
A 1 L 1
A 2 L 2
F 2 S 2
F 1 S 1
B 1 M 1
D 2 P 2
B 2 M 2
F 3 S 3
C 3 N 3
A 3 L 3
C 2 N 2
D 1 P 1
E 1 R 1
E 2 R 2
B 25
10A
12V
FUSED IGN
12V
10A
GROUND
REVERSE WARNING
RELAY (REQUIRED)
RELAY OUTPUT
WIRE #125
NEUTRAL START
RELAY (REQUIRED)
MAIN POWER
DIMMER INPUT
DO NOT SHIFT
RELAY OUTPUT
WIRE #114
SPEEDOMETER
OUTPUT
RELAY OUTPUT
WIRE #112
IGNITION
+
12/24 VOLT
BATTERY
HARNESS TERMINALS
VIM TERMINALS
PACKARD
OPTIONAL DEUTSCH
THROTTLE
POSITION
SENSOR
ELECTRONIC CONTROL UNIT
B 4
A 22
A 27
A 34
A 9
B 14
A 26
A 7
B 28
SOLENOID GROUND 4
H SOL
H SOL
K SOL HI
K SOL LO
OUTPUT SPEED LO
B 31
A 6
B 32
B 27
B 6
A 10
A 30
A 21
A 2
A 11
A 4
A 29
A 31
A 3
A 28
A 20
B 7
RTDR TEMP
RETARDER
MODULATION
SIGNAL
RETARDER
MODULATION
HI
NOT USED
J SOL (MD 3070)
F SOL HI (LOCK-UP)
C 3 PS
OIL LEVEL
NOT USED
SIGNAL GROUND
TURBINE SPEED LO
F SOL LO
SOLENOID GROUND 3
SOLENOID GROUND 2
SOLENOID GROUND 1
G SOL
E SOL
D SOL
C SOL
B SOL
A SOL
ENGINE SPEED HI
CHASSIS GROUND
B 10
BLACK
144
NEAREST CHASSIS GROUND
(DO NOT CONNECT TO BATTERY GROUND)
F
A 3
D 3
C 3
B 3
G 3
G 2
F 2
E 2
D 2
C 2
B 2
A 2
H 1
F 1
E 1
D 1
C 1
B 1
A 1
A
ABC
B 1 B 22 A 24
13 5A
GREEN
B 15
E 3E 3
G1
ORANGE
148
107
162 WHITE
106 WHITE
165 BLUE
161A YELLOW
BLUE
110 WHITE
130 YELLOW
102 ORANGE
121 VIOLET
104 WHITE
129 VIOLET
131 BLUE
128 ORANGE
120 WHITE
103 GREEN
B 16
ENGINE SPEED LO
B
150 ORANGE
141 VIOLET
VIOLET
VIOLET
VIOLET
VIOLET
VIOLET
VIOLET
WHITE
VIOLET
BLACK
BLACK
BLACK
WHITE
WHITE
BLACK
BLACK
RED
RED
WHITE
OIL LEVEL
SENSOR
RED
RED
WHITE
A SOL
B SOL
C SOL
D SOL
E SOL
G SOL
SUMP TEMP
TPS
LO
THROTTLE
SIGNAL
TPS
HI
GREEN
ON/OFF
H SOL
135B
B 30
127
A 33
F SOL
E
B
A
RETARDER
138
135C
139
122
127
140
149
134
109
VLT
SEE
NOTE
1
SEE
NOTE
2
135B
GENERAL NOTES:
C 3 PRESSURE
BLUE RED
WHITE
ORG
BLUE
YEL
GREEN
TRANSMISSION
CONNECTOR
PRE MY 95; 24-WAY
(ANALOG
GROUND)
SWITCHED
IGNITION
POWER
K SOL
(RETARDER
MODULATOR)
OUTPUT
SPEED
SENSOR
TRANSFER
CASE
(SEPARATE ON
RETARDER)
RTDR
TEMP
D
C
B 5
OUTPUT SPEED HI
YELLOW
CUSTOMER SUPPLIED WIRING
REFERENCE DRAWINGS
AS07-000, AS07-020, AND
AS07-021M FOR VEHICLE
INTERFACE WIRING
INFORMATION.
CUSTOMER SUPPLIED WIRING AND CONNECTOR
SCHEMATIC SYMBOLS:
HIGH SIDE (POWER)
LOW SIDE (GROUND)
HIGH SIDE DRIVER (SWITCH TO POWER)
LOW SIDE DRIVER (SWITCH TO GROUND)
B 13F 3
147 VIOLET
116 YELLOW
A 16
N SOL HI (MD 3070)
H 3
116 YELLOW
A 1
N SOL LO (MD 3070)
H 2
101 BLUE
111 GREEN
AND CONNECTOR
V05002
RETARDER
ACCUMULATOR
SOLENOID
AB
336C
336A
323NO
323CM
325NC
325CM
315
358
314NO
314NC
314CM
357FL
357UF
312NO
312NC
312CM
332NO
332NC
332CM
346
313NO
313CM
343C
343A
FUSED IGN
FUSED IGN
FUSED IGN
FUSED IGN
122
B 25
NOT USED
WORLD TRANSMISSION
SYSTEM WIRING SCHEMATIC
B
148
140
A
B
A
RETARDER
MD/B 300/B 400
RETARDER CONNECTOR
HD/B 500
138
135C
139
149
134
109
R
L
D
C
S
M
F
E
SEE
NOTE
1
SEE
NOTE
5
K SOL
(RETARDER
MODULATOR)
OUTPUT
SPEED
SENSOR
RTDR
TEMP
B
A
TURBINE
SPEED
SENSOR
B
A
g
116
NOTE:
NON-RETARDER TRANSMISSION
HAS NO RETARDER CONNECTORS.
OUTPUT SPEED SENSOR CONNECTOR
IS INTEGRAL WITH RETARDER
EQUIPPED TRANSMISSION.
1
2
SOME VEHICLES WILL UTILIZE TWO
RETARDER MODULATION DEVICES.
3
RETARDER CONTROL DEVICE TO
RETARDER RESISTANCE MODULE/
INTERFACE WIRING CONSISTS
OF TWO TO SEVEN WIRES, DEPENDING
UPON THE TYPE OF CONTROL DEVICE.
4
HD/B 500 TURBINE SPEED SENSOR IS
LOCATED ON MAIN CASE.
5
RED
TURBINE SPEED SENSOR
TRANSMISSION
CONNECTOR
MY 95 AND LATER
31-WAY
V
149
P
147
E
107
X
162
Y
165
D
106
f
101
N
135B
W
161A
U
140
F
110
L
130
H
121
A
102
e
111
C
104
K
129
M
131
B
103
J
128
G
120
B
A
OPTIONAL
SENSOR
HARNESS
OPTIONAL
SENSOR
HARNESS
OPTIONAL SENSOR HARNESS
J SOL
N SOL
B
A
R
G
D
C
S
H
F
E
C
D
127
122
H
G
ACCUMULATOR
H SOL
P
N
ISO 9141 COMMUNICATION LINK
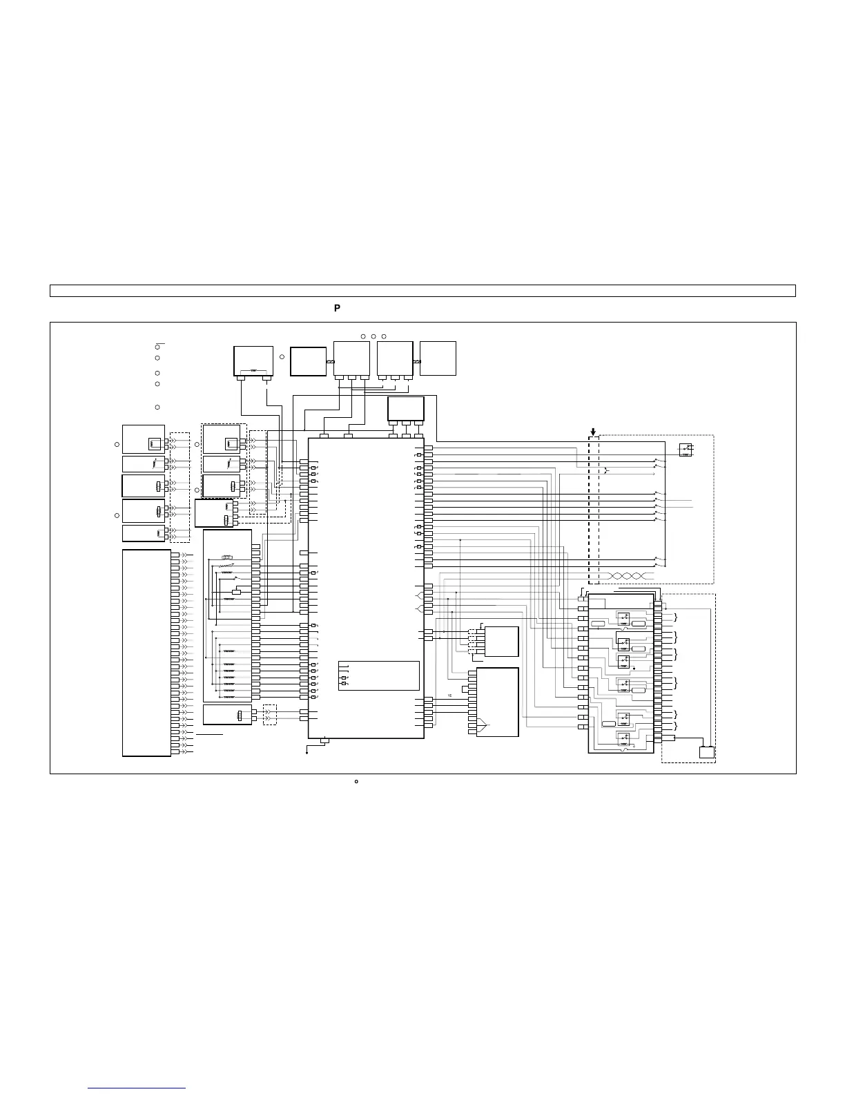
Foldout J–1. WT Wiring Schematic (Pre-TransID)
APPENDIX J — WT WIRING SCHEMATICS

Table of Contents

Related product manuals