EasyManua.ls Logo

Alpha CD24 - Installation

Alpha CD24
44 pages
Print Icon
To Next Page IconTo Next Page
To Next Page IconTo Next Page
To Previous Page IconTo Previous Page
To Previous Page IconTo Previous Page
Loading...
13
Alpha CD24/32 - Installation
4 INSTALLATION
4.1 UNPACKING
1. The boxes required when the boiler is installed with a horizontal flue are as follows:-
Box 1 Cased boiler fitted with water and gas valves, filling loop, union bends and washers
Mounting bracket plus screws and wall plugs
Literature pack and Wall template
Box 2 CD Easy-Flue 500 mm or CD Easy-Flue 1000 mm. Both include 90° bend and horizontal flue terminal
Note: NOT required for vertical flue
Notes: a. All flues must be suitable for CD condensing boilers.
b. CD 750 mm flue extensions are available, if required.
2. Unpack boiler and remove the loose items packs and mounting bracket.
Note: The boiler can be stood in an upright position, (to allow this, the union bends have been turned upwards so that
they do not protrude beneath the bottom - check this before standing the boiler upright).
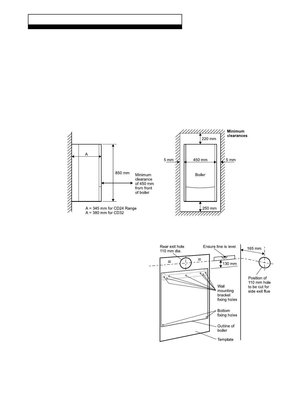
4.2 CLEARANCES REQUIRED - Fig. 10
Fig. 10
4.3 PREPARE THE WALL - Figs. 11, 12
1. Decide upon the position of the boiler taking into
account the clearances required for servicing and
the flue terminal position.
2. Tape the template to the wall (ensure it is level and
the right way up) and mark the position of the holes
for the boiler mounting bracket and bottom fixings. If
rear exit flue is used, mark the position of the hole
for the flue.
3. Side exit flue - Continue the horizontal centre line of
the flue across the wall to the side wall, then along the
side wall 165 mm (ensure the lines are horizontal). This
will give the position of the centre of the hole for the flue.
4. Cut the 110 mm diameter hole (or use a 107 mm
core drill) in the wall for the flue.
Notes: a. Ensure the hole is horizontal.
b. For internal fitting of the flue, using the
flue sealing collar supplied, cut a 130 mm
dia. flue hole using a 127 mm core drill.
5. Drill the fixing holes (10 mm dia.) to accept the No.10
plugs supplied. Using the screws supplied, fit the
mounting bracket.
6. Top pipe connections - Preform the pipework at the back of the boiler before hanging the boiler, see Fig. 12, and secure in
the clips provided.
Fig. 11

Related product manuals