EasyManua.ls Logo

Alpine CDE-9846RM - Wiring Diagram Overview; Electrical Connections Diagram

Alpine CDE-9846RM
27 pages
Print Icon
To Next Page IconTo Next Page
To Next Page IconTo Next Page
To Previous Page IconTo Previous Page
To Previous Page IconTo Previous Page
Loading...
22-EN
7
1
:
2
6
5
3
8
9
!
(
)
~
+
&
%
.
,
-
"
#
$
/
/;
4
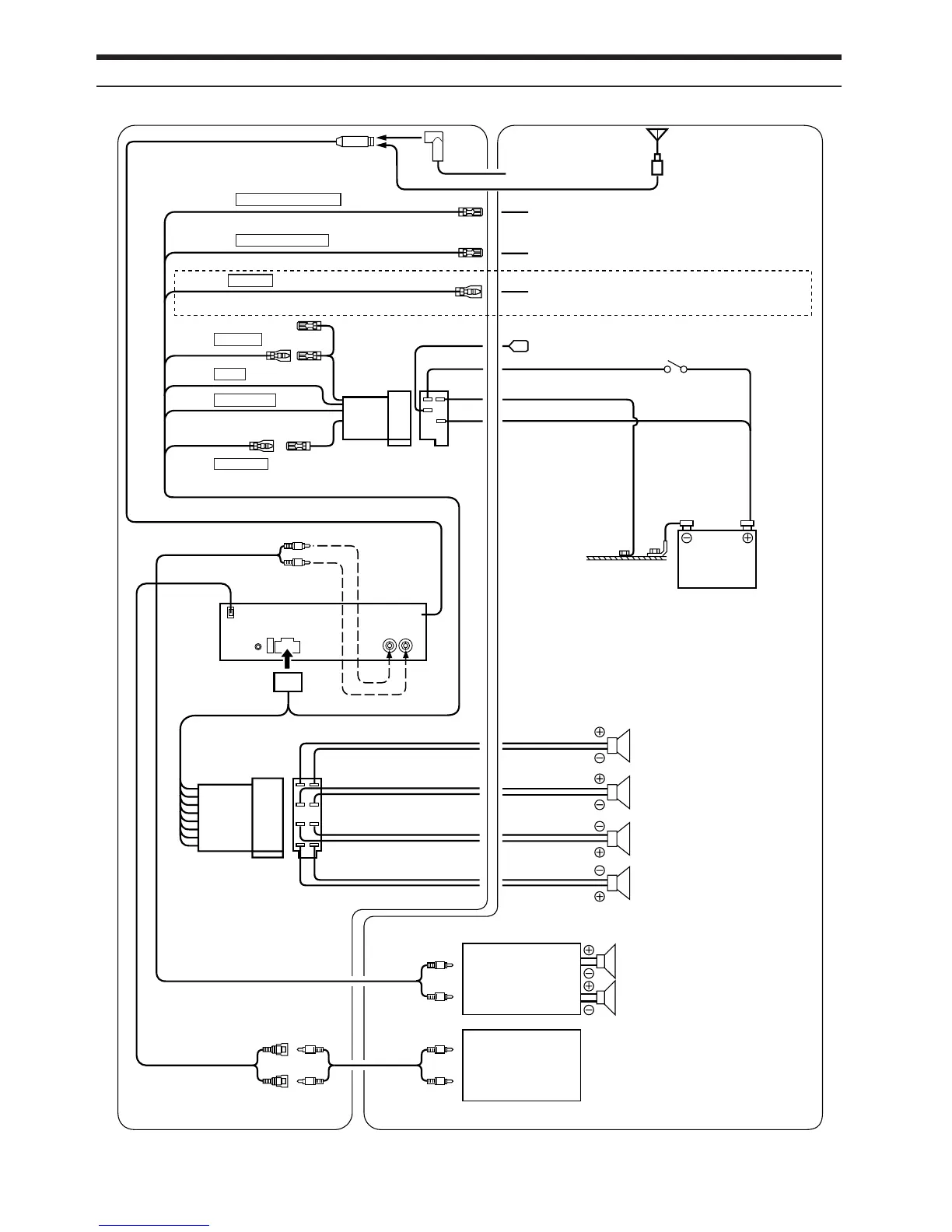
Connections
Front or Subwoofers
To amplifier or equalizer
Ignition Key
To vehicle phone
Amplifier
To the instrument cluster illumination lead
Battery
Rear Left
Front Left
Rear Right
Speakers
Front Right
(Pink/Black) AUDIO INTERRUPT IN
(Blue/White) REMOTE TURN-ON
(Green)
(Green/Black)
(White)
(White/Black)
(Grey/Black)
(Grey)
(Violet/Black)
(Violet)
Antenna
ISO Antenna Plug
(Yellow) BATTERY
(Blue) POWER ANT
(Black) GND
(Red) IGNITION
(CDE-9848RB only)
(Orange) DIMMER
To power antenna
JASO Antenna Plug
External Device
(Such as a portable player)

Table of Contents

Related product manuals