EasyManua.ls Logo

Alpine IVA-D300 - Page 76

Alpine IVA-D300
82 pages
Print Icon
To Next Page IconTo Next Page
To Next Page IconTo Next Page
To Previous Page IconTo Previous Page
To Previous Page IconTo Previous Page
Loading...
74-EN
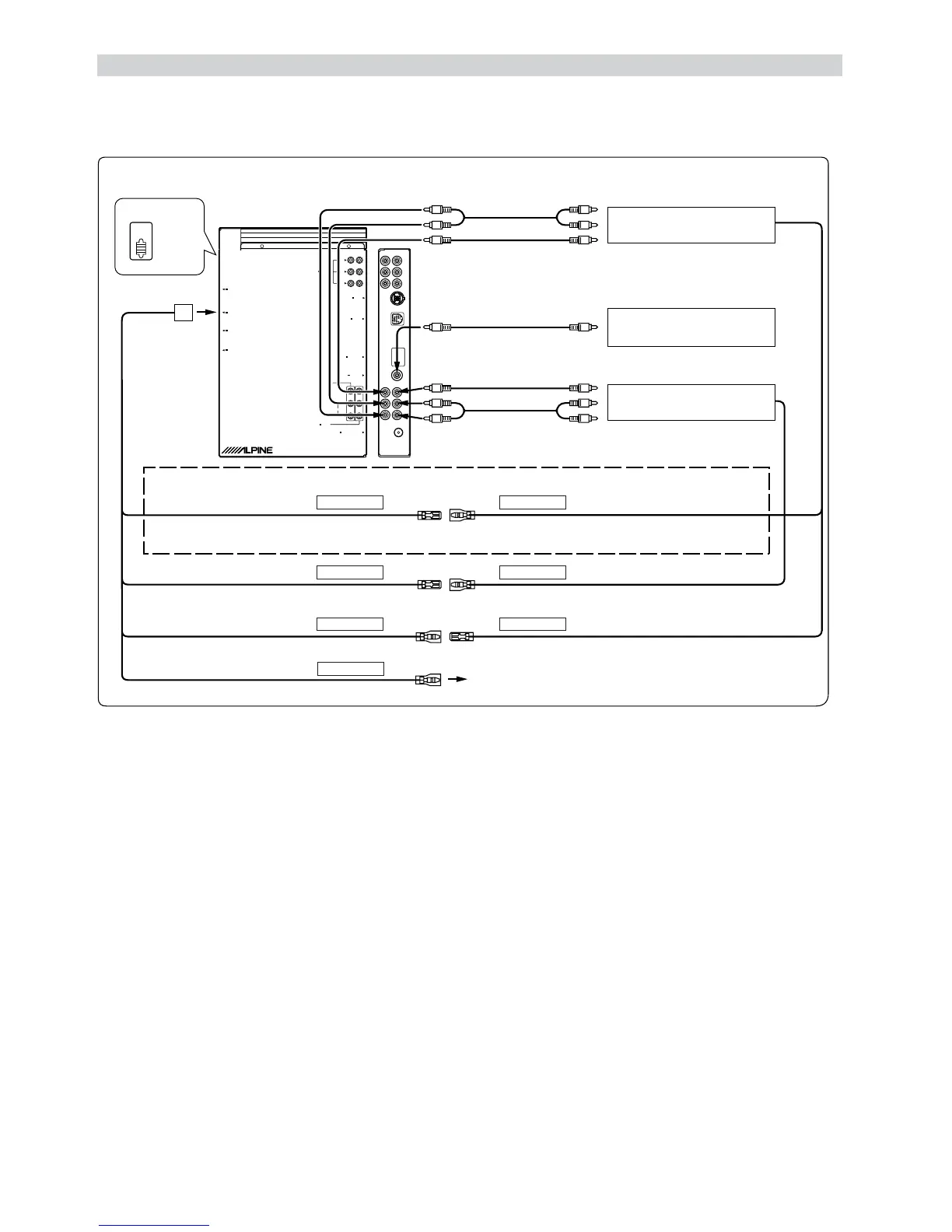
DISPLAY OUT
NAVIGATION IN
REMOTE IN/ OUT
PRE IN/OUT
Ai-NET
FRONT
L
R
SUBW.
REAR
POWER SUPPLY
AUX OUT
AUX IN
VIDEO
AUDIO
(MONO)
R
L
RADIO ANTENNA IN
CAMERA IN
AV.SELECTOR
EXT.OUT
1
2
5
3
4
!
!
7
9
!
8
6
NORM
EQ/DIV
When Connecting External Equipment
To Audio Input terminal
Rear monitor
(Sold Separately)
To Video Input terminal
To Audio Output terminal
To Video Output terminal
To Video Output terminal
TV Tuner or VCR
(Sold Separately)
Back-up camera
(Sold Separately)
Use only when back-up camera is connected.
1 System Switch
When connecting an equalizer or divider using Ai-NET
feature, place this switch in the EQ/DIV position. When no
device is connected, leave the switch in the NORM
position.
Be sure to turn the power off to the unit before changing the switch
position.
2 Remote IN/OUT Terminal
3 CAMERA Input Terminal
Use when connecting a back-up camera.
4 AUX Video/Audio Output Terminal
Use when connecting an optional monitor etc.
5 AUX Video/Audio Input Terminal
6 Monitor Control Lead (White/Pink)
Connect this to the Monitor Control Lead of the touch
panel-compatible rear monitor.
7 Remote Control Output Lead (White/Brown)
Connect this lead to the remote control input lead. This
lead outputs the controlling signals from the remote
control.
8 Remote Control Input Lead (White/Brown)
9 Connect to the plus side of the car's reverse lamp
which lights when the transmission is shifted into
reverse (R).
Switches the video picture to the back-up camera.
This is linked to putting the car into reverse (R).
! RCA Extension Cable (Sold separately)
(White/Pink)
M.CONT
(White/Brown)
REMOTE OUT
(White/Brown)
REMOTE IN
(Orange/White)
REVERSE
REMOTE OUT
REMOTE IN
(White/Brown)
(White/Brown)
(White/Pink)
M.CONT
IVA-D300
Tuner BOX
*
Connect this to the touch panel-compatible rear monitor.

Table of Contents

Related product manuals