EasyManua.ls Logo

Amana BBA60A2A - BBA w; ECB20 B;C Wiring Diagram

Amana BBA60A2A
20 pages
Print Icon
To Next Page IconTo Next Page
To Next Page IconTo Next Page
To Previous Page IconTo Previous Page
To Previous Page IconTo Previous Page
Loading...
18 Rev. 1
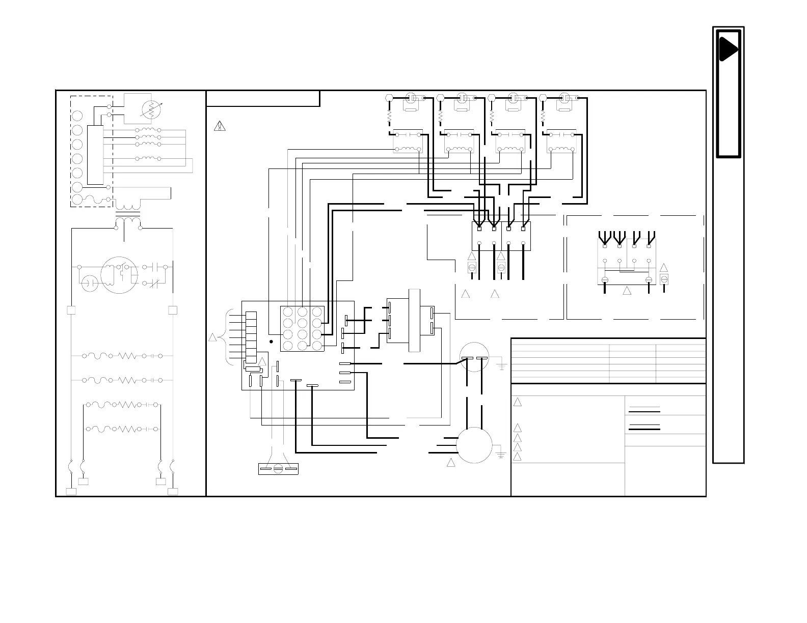
WIRING DIAGRAMS
TO AVOID PERSONAL INJURY OR DEATH DUE TO ELECTRICAL
SHOCK, DISCONNECT THE POWER BEFORE SERVICING.
WARNING
!
Wiring is subject to change, always refer to the wiring diagram on the unit for the most up-to-date wiring.
BBA w/ ECB20B/C
OR
RD
BK
COM
208
240
T
R
A
N
S
F
O
R
M
E
R
BU
YL
YL7
YL7
VT14
VT
TH
CAP
MIB
BR
UNUSED
L1
L2
121110
987
654
321
R
C
Y
E
O
G
R
C
THERM
UNUSED
UNUSED
FAN
IDLE
FAN
FAN
COM
1
CIRCUIT
BREAKERS
60A
60A
11147201 REV. 1
FACTORY SUPPLIED WIRING
FIELD SUPPLIED WIRING
LOW VOLTAGE
HIGH VOLTAGE
COLOR
CODE:
1ST GROUP-COLOR
2ND GROUP-NUMBER
BLACK-BK
BLUE-BU
RED-RD
TAN-TN
GRAY-GY
WHITE-WH
ORANGE-OR
GREEN-GN
YELLOW-YL
VIOLET-VT
BROWN-BR
PINK-PK
WN-WIRE NUT TH-THERMISTOR
CAP-CAPACITOR
MIB-MOTOR INDOOR BLOWER
R-RELAY HT-HEATER
FL-FUSABLE LINK
1
3
UNIT MUST BE PROPERLY GROUNDED.
PUT DESIRED SPEED TAP ON TERMINAL
MARKED "FAN". IF DESIRED, PUT OFF
CYCLE SPEED TAP ON TERMINAL MARKED
"FAN IDLE". PUT UNUSED SPEED TAPS
ON TERMINALS MARKED "UNUSED".
CONTROL BOARD MALFUNCTION
CONTINUOUS NONE
6 FLASHES
SYSTEM ERROR 3 SECONDS
THERMISTOR ERROR
THERMISTOR AND/OR BOARD ERROR
NORMAL OPERATION
MODE
4 FLASHES
2 FLASHES
1/2 SECOND ON
LED ON TIME
LED FLASH CODE
3 SECONDS
3 SECONDS
1/2 SECOND OFF
LED OFF TIME
3A FUSE MAX
4
LOW VOLTAGE
HIGH VOLTAGE
RD26 (LOW)
BU24 (MED)
BK27 (HI)
4
12 PIN
CONNECTOR
LED
W2
TRANSFORMER
208
L1
240
L2
COM
FIELD CONNECT
208/240VAC
RD-L1
BK-L2
RD-L1
RD
L1
BK-L2
BK
L2
BK-L4
RD-L3
RD
L3
BK
L4
CIRCUIT BREAKERS
BBA MODELS ONLY
VT
OR
YL
PK
WH
GY
R1
FL1
HT1
R2
FL2
HT2
R3
FL3
HT3
R4
FL4
HT4
69
FL4
HT4
R4
FL3
HT3
R3
FL2 HT2
R2
FL1 HT1
R1
5
WARNING: DISCONNECT POWER BEFORE
SERVICING.
5
FIELD LOW VOLTAGE CONNECTIONS
PER INSTALLATION INSTRUCTIONS.
Y
E
W2
O
G
C
R
L
O
G
I
C
THERMISTOR
1
R1
R4
R2
2
3
4
5
7
10
11
R3
G
N
D
L2 L1 L4 L3G
N
D
3
2
3
2
2
USE COPPER CONDUCTORS ONLY,
SUITABLE FOR 75°C MINIMUM.
60A
60A
FIELD CONNECT 208/240 1Ø VAC
W/ SPK02A INSTALLED
L2 L1
GND
3
2
L2 L1 L4 L3
OROROROR
L1
L4
L2
L3
L1
FAN
COM
CAP
MIB
FAN
IDLE
FAN

Related product manuals