EasyManua.ls Logo

AmazonBasics B079LNTDQV - Page 106

AmazonBasics B079LNTDQV
177 pages
Print Icon
To Next Page IconTo Next Page
To Next Page IconTo Next Page
To Previous Page IconTo Previous Page
To Previous Page IconTo Previous Page
Loading...
106
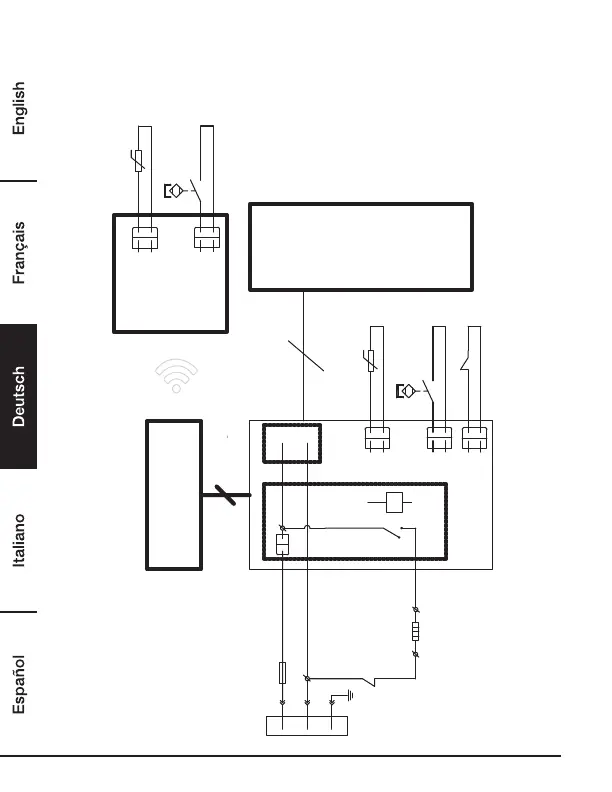
Schematischer elektronischer Schaltplan
θ
Temperature Fuse
AC Input
L
N
E
Heater
Top Switch
N
L
θ
Pressure Switch
Bottom Temperature
Sensor
Temperature cut-out
TOP Temperature Sensor
Pressure Sensor
AC-Eingang
Temperatur-Sicherung
Verbindungslinie
Verbindungslinie
Anzeige-Platine
Empfänger-
Platine
Unterer Temperatur-Sensor
Oberer Temperatur-Sensor
Druck-Sensor
Oberer Schalter
Druckschalter
kabellos
Power-
Platine
Transmitter-Platine
Temperatur-
Schutzschalter
Heizplatte