EasyManua.ls Logo

AmazonBasics B079LNTDQV - Schema Elettrico

AmazonBasics B079LNTDQV
177 pages
Print Icon
To Next Page IconTo Next Page
To Next Page IconTo Next Page
To Previous Page IconTo Previous Page
To Previous Page IconTo Previous Page
Loading...
140
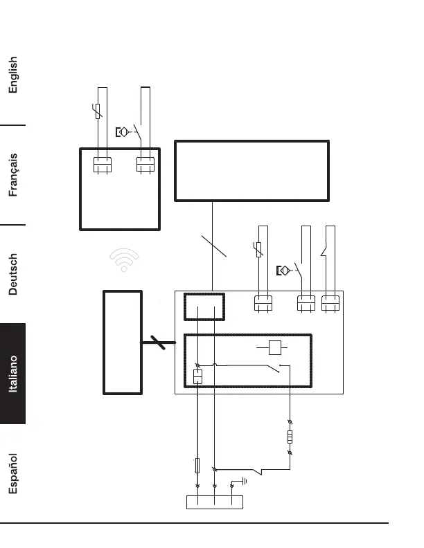
Schema elettrico
θ
Temperature Fuse
AC Input
L
N
E
Heater
Top Switch
N
L
θ
Pressure Switch
Bottom Temperature
Sensor
Temperature cut-out
TOP Temperature Sensor
Pressure Sensor
Ingresso CA
Fusibile temperatura
Linea di
collegamento
Linea di
collegamento
Scheda di
visualizzazione
Scheda di
ricezione
Sensore di temperatura
inferiore
Sensore di temperatura
superiore
Sensore di
pressione
Interruttore
superiore
Pressostato
wireless
Scheda di
alimentazione
Scheda di trasmissione
Temperatura di
spegnimento
riscaldatore