EasyManua.ls Logo

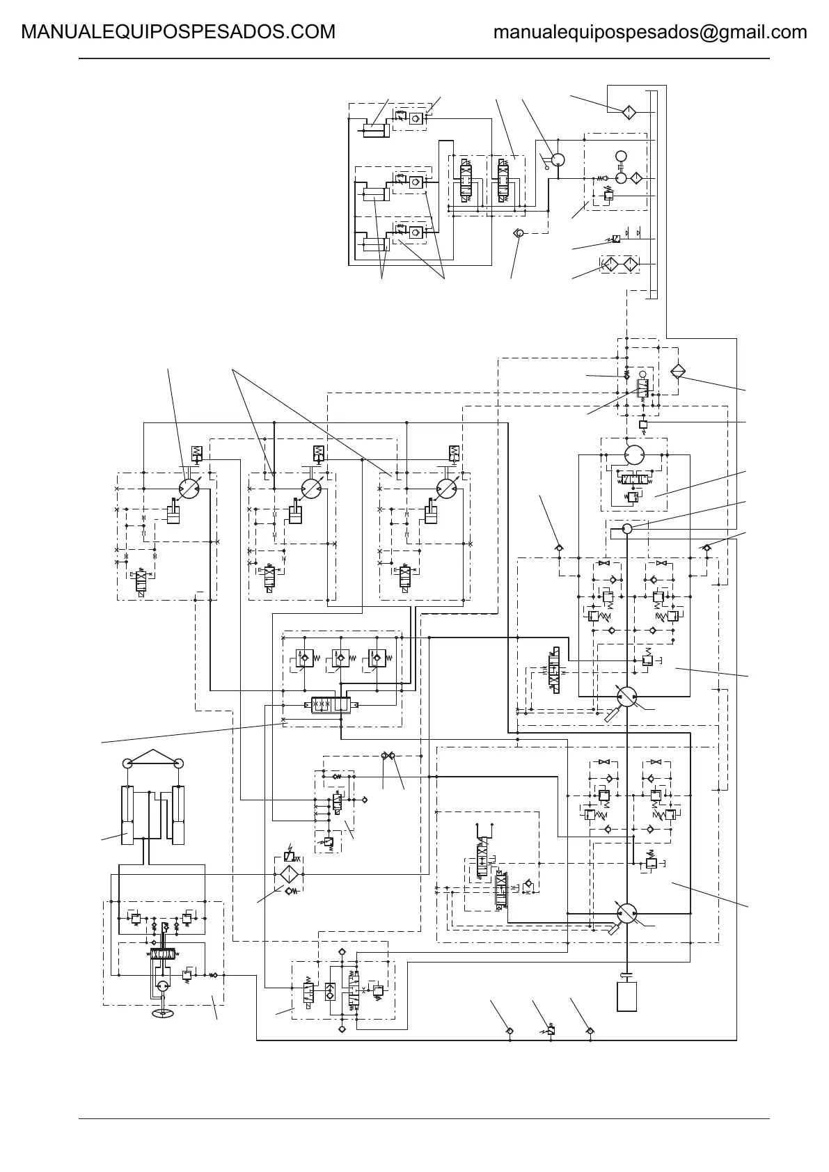
Ammann ASC 150 - Hydraulic Circuits; ASC110;130;150 ATC Circuit

Ammann ASC 150
95 pages
Print Icon
To Next Page IconTo Next Page
To Next Page IconTo Next Page
To Previous Page IconTo Previous Page
To Previous Page IconTo Previous Page
Loading...
329ASC 70 / 90 / 100 / 110 / 130 / 150 / 200 / 250
WORKSHOP MANUAL
)
B2
A2
B1
T
P
P
5 bar
°C
°C
28
60
60
S
B
X
P1
P
T
B3
B4
B2
B1
B5
2,7
16 bar
15 bar
5
3,5
TN
P
150
798
200
R
200
L
T
C
2
3
1
P
C
B
B
M
B
MA
A
T
M
P1
1MPa
A
C
S
60
60*
80**
45
45*
63**
42
28*
28**
45
63*
63**
350
350
420
420
22
75
60 bar
55°C
40°C
T
A1
3
2
1
1,9
М
100
80
ASC 110
ASC130*
ASC150**
107556
3
5
30
29
28
27
14
26
17
16
24
29
31
19
18
254
8
21
2
1
21
13
22
24
23
12
15
9
11
7
10
21
20
MANUALEQUIPOSPESADOS.COM manualequipospesados@gmail.com

Related product manuals