EasyManua.ls Logo

Ammann ASC 70 - Workshop manual - ASC 70÷250 Cummins T1÷T3 - en

Ammann ASC 70
95 pages
Print Icon
To Next Page IconTo Next Page
To Next Page IconTo Next Page
To Previous Page IconTo Previous Page
To Previous Page IconTo Previous Page
Loading...
256 ASC 70 / 90 / 100 / 110 / 130 / 150 / 200 / 250
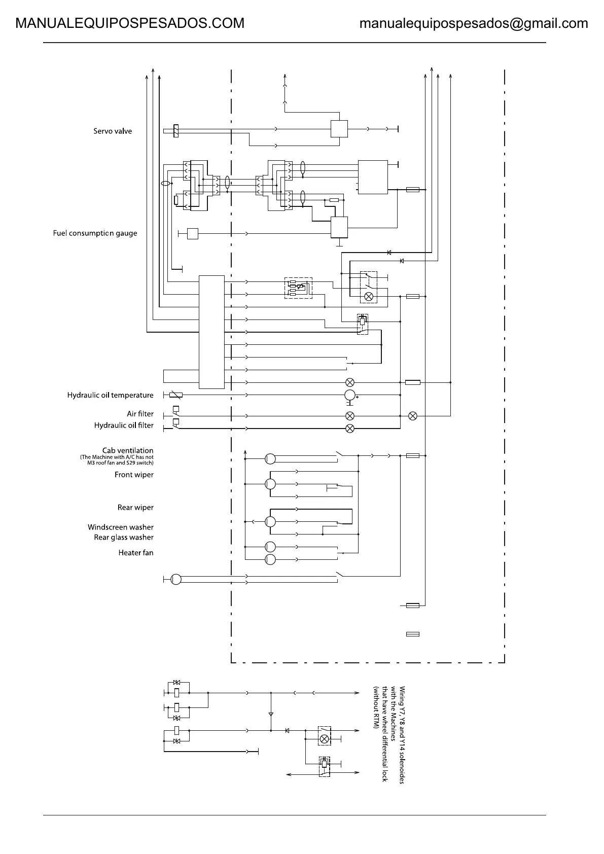
23. Electrical schemata
1
4
2
3
1,9
5
5výstup
1
9
5
10
X14:2X12:2
X4:6
X4:5
X5:4
1
5
4
2
3
X41:9
X41:8
X41:7
X41:6
X41:5
X41:4
X41:3
X41:2
X41:1
5444
120R
X12:1
3
24
1
7
3
1
9
2
1
10
6
5
7
27 3528 15 41 19 30 53
45
G
AB
C D
Z
P
P
X7:4 X11:8
X7:3
X7:2
X6:3
X6:5
X6:8
X6:9
X7:1
15A
20A
X9:6X10:6
1
5
7
1
5
7
5
3
1
X16:1
X15:2
X16:4
X15:4
X16:2
X15:1
X6:10
X6:11
X16:3
1
3
7
X17:1
X17:2
S
°C
5 3
1
5A
F
E
B
D
J
M
L
K
6026
1A
C
B
A
C D E
BA
A
B
A
C
F G
C
A
B
A
B
B
A
C C
A
B
B
121
24
C
A2
A3
A4
A5
A1
A6
6
5
7
8
1
2
3
K8
S16/
V5
S18/
K7/
F3/
S36
V4
Y14
Y8
Y7
K9
R5
V7
R4
S39
S37
V6
X23
H17
B3
M
M3
Y13
M
M5
M
M4
B2
S27
S28
H11
H12
H10
F6
F7
F8
S30
S31
S33
S32
M
M7
M
M6
P2
S29
F5
F4
X34
X35
X39
X40
X38
X37
X36
A4
A3
M
M8
Fast travel – LH wheel
Fast travel – RH wheel
Fast travel - drum
Engine
diagnostics
socket
Engine connector
Reserve for air conditioner
Reserve
211248_2new_en
MANUALEQUIPOSPESADOS.COM manualequipospesados@gmail.com

Other manuals for Ammann ASC 70

Related product manuals