EasyManua.ls Logo

Andco Eagle - Dimensional Drawings and Data; Eagle Actuator Outline Dimensions

Andco Eagle
12 pages
Print Icon
To Next Page IconTo Next Page
To Next Page IconTo Next Page
To Previous Page IconTo Previous Page
To Previous Page IconTo Previous Page
Loading...
6
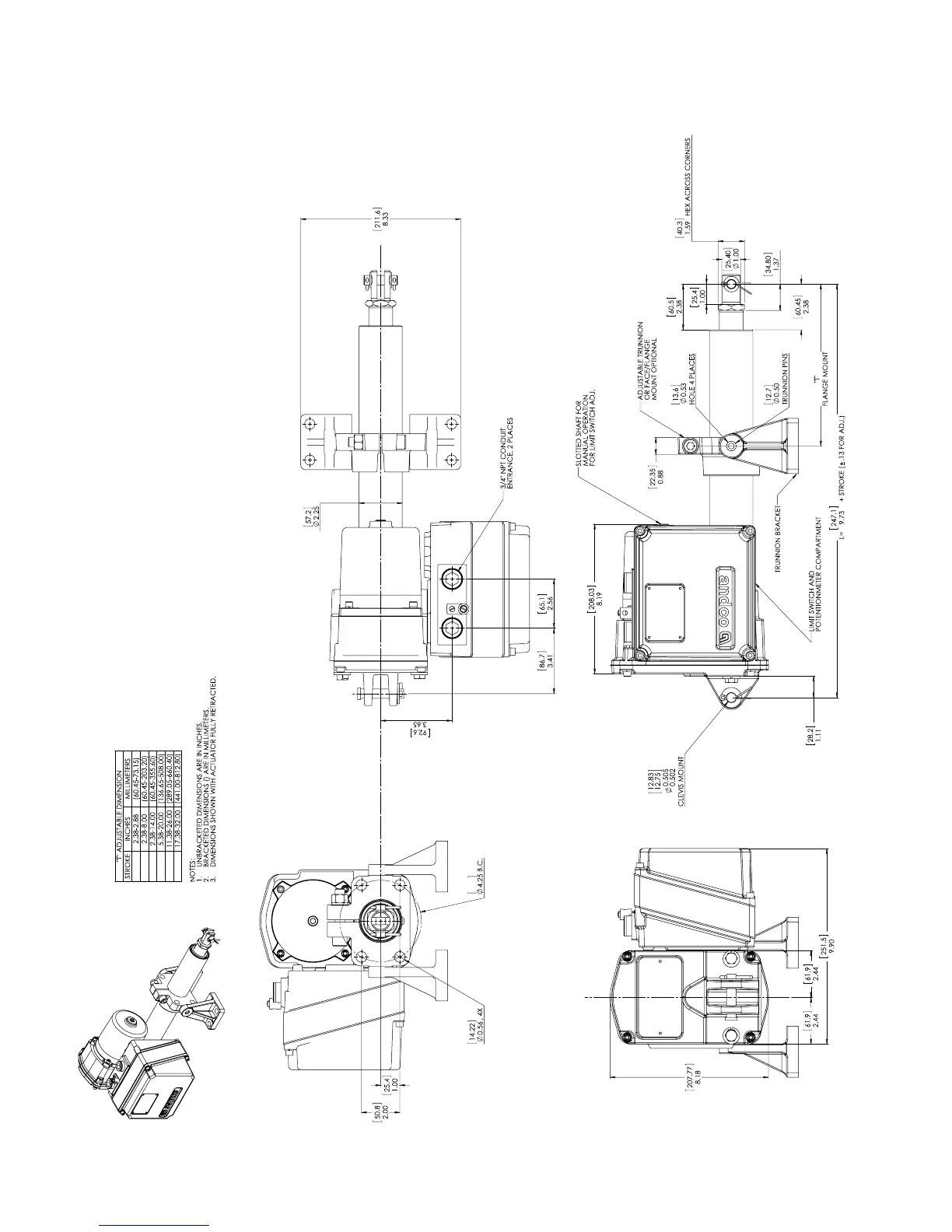
Figure 1 - Eagle Outline Dimension Drawing
108
ADJUSTABLE FACE/FLANGE MOUNT (OPTIONAL)
VIEWED FACING DRIVE ROD END OF ACTUATOR)
6
12
18
24
30
36
THE INFORMATION CONTAINED IN THIS
DRAWING IS THE SOLE PROPERTY OF GE OIL &
GAS AND MAY NOT BE USED, REPRODUCED,
PUBLISHED OR DISCLOSED TO OTHERS WITHOUT
EXPRESS AUTHORIZATION THEREOF. IT SHALL BE
RETURNED TO THE OWNER UPON DEMAND.
PROPRIETARY AND CONFIDENTIAL
INTERPRET PER ASME Y14.5-XXXX
THIRD ANGLE PROJECTION
SHEET
FILENAME
SIZE
SCALE
REV
1:2
-
ES1250
6 of 8
DRAWN BY
CHECKED BY
RK
030314
ET
DATE
D
ASSEMBLY EAGLE ACTUATOR GENERAL AR
DESCRIPTION
GE Oil & Gas
APPVD BY
RK
UNLESS OTHERWISE SPECIFIED:
.XX =
.01
.XXX =
.005
FRACTIONS:
1/32
MATERIAL :
WEIGHT:
ANGLES (EXCEPT CHAMFERS):
1/2
ANGLES ON CHAMFERS: ± 2
REMOVE BURRS & BREAK EDGES, .015 MAX.
MACHINED FINISH: 125 µ in
$PRPSHEET:{Material}
DIMENSIONS ARE IN INCHES
CHAMFERS AND FILLETS: .03
CRITICAL DIMENSION; MUST INSPECT