EasyManua.ls Logo

AOpen DE2700 - Page 22

AOpen DE2700
24 pages
Print Icon
To Next Page IconTo Next Page
To Next Page IconTo Next Page
To Previous Page IconTo Previous Page
To Previous Page IconTo Previous Page
Loading...
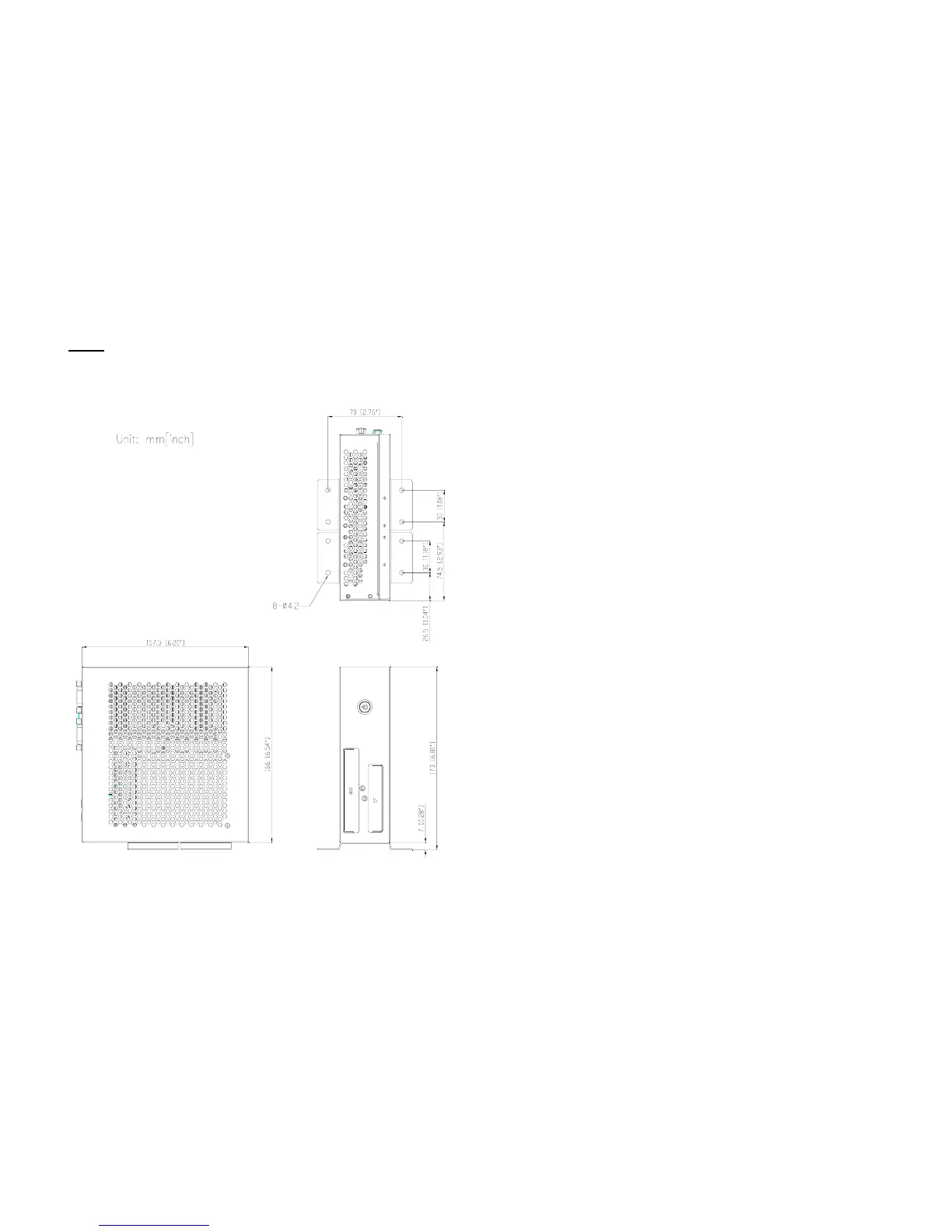
D-2 Dimension of Vertical Holder. (unit: mm[inch])
12

Related product manuals