EasyManua.ls Logo

APW Wyott FD - Wiring Diagrams

APW Wyott FD
12 pages
Print Icon
To Next Page IconTo Next Page
To Next Page IconTo Next Page
To Previous Page IconTo Previous Page
To Previous Page IconTo Previous Page
Loading...
10
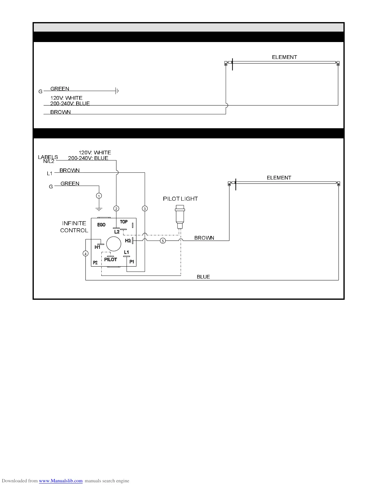
REMOTE CONFIGURATION
8. FD18-72 WIRING DIAGRAMS
INFINITE CONTROL CONFIGURATION
GREEN
BROWN
200-240V: BLUE
N/L2
G
L1
120V: WHITE
LABELS
PILOT LIGHT
INFINITE
CONTROL
ELEMENT
4
5
BROWN
BLUE
1
2 3
GREEN
G
200-240V: BLUE
BROWN
120V: WHITE
ELEMENT

Other manuals for APW Wyott FD

Related product manuals