EasyManua.ls Logo

Aqua-Base YC - Page 27

Aqua-Base YC
Print Icon
To Next Page IconTo Next Page
To Next Page IconTo Next Page
To Previous Page IconTo Previous Page
To Previous Page IconTo Previous Page
Loading...
AQUABASEYFR-GB -ES 01-2007 VERSION 01/07 FR/GB/ES Page 27/27
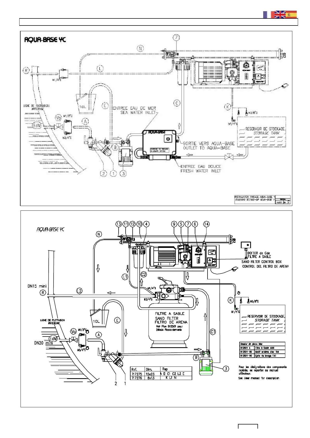
SYSTEME FLUSH / FLUSH SYSTEM / FLUSH SISTEM
Fig. 21
Fig. 22

Related product manuals