EasyManua.ls Logo

Argo AE726SCL - Dimensional Data; AE726 SCL;AE735 SCL Dimensions

Argo AE726SCL
51 pages
Print Icon
To Next Page IconTo Next Page
To Next Page IconTo Next Page
To Previous Page IconTo Previous Page
To Previous Page IconTo Previous Page
Loading...
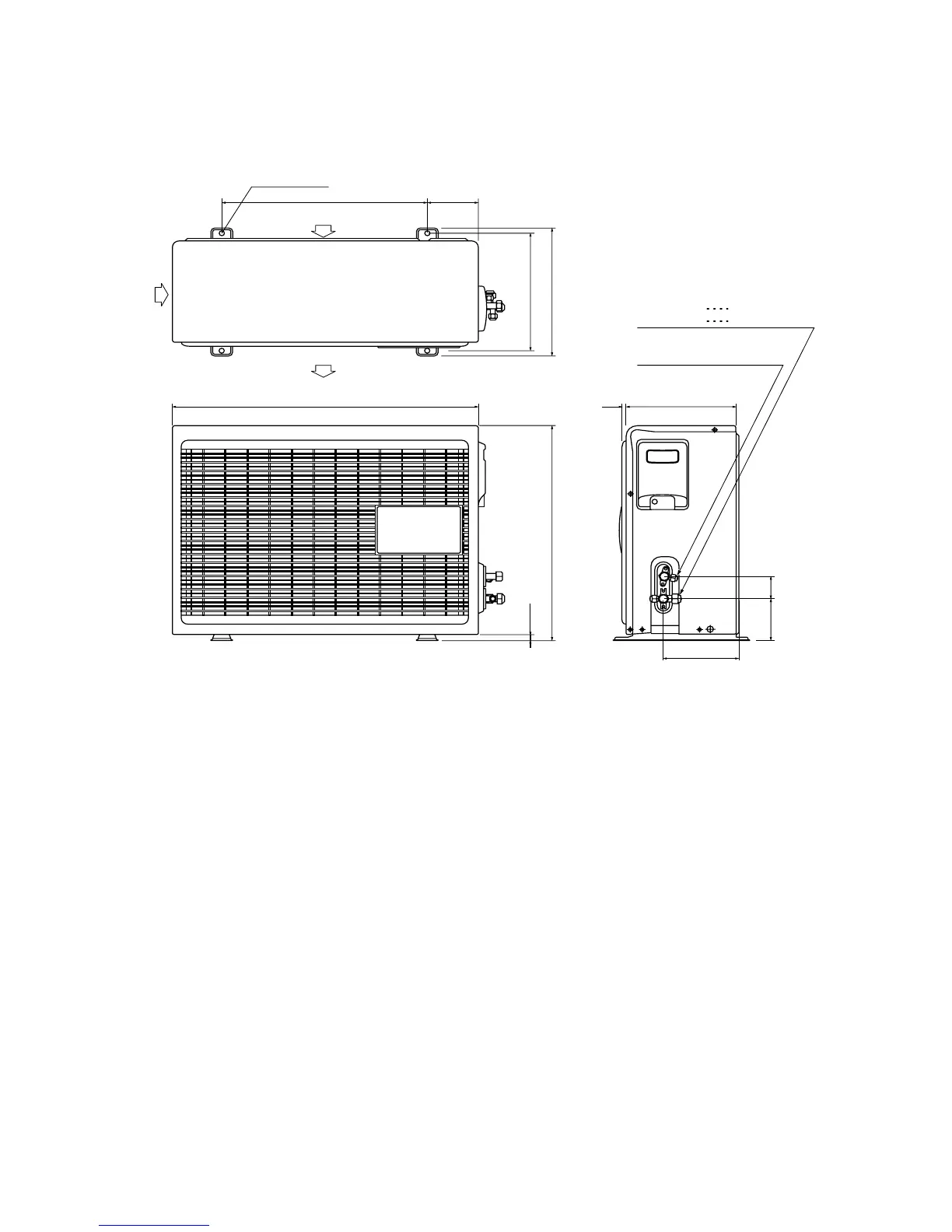
3. DIMENSIONAL DATA
Outdoor Unit: AE726SCL AE735SCL
700
540
15
470
4 – ø12 holes
116
320
294
Air intake
Air discharge
25510
170
103 57
Narrow tube service valve
ø6.35 (1/4")
Wide tube service valve
ø9.52 (3/8")
ø12.7 (1/2")
7000/9000 BTU/h
12000 BTU/h
Unit : mm
22

Related product manuals