EasyManua.ls Logo

Argo AW22AL - Name of Parts and Operation Selector Switch

Argo AW22AL
12 pages
Print Icon
To Next Page IconTo Next Page
To Next Page IconTo Next Page
To Previous Page IconTo Previous Page
To Previous Page IconTo Previous Page
Loading...
3
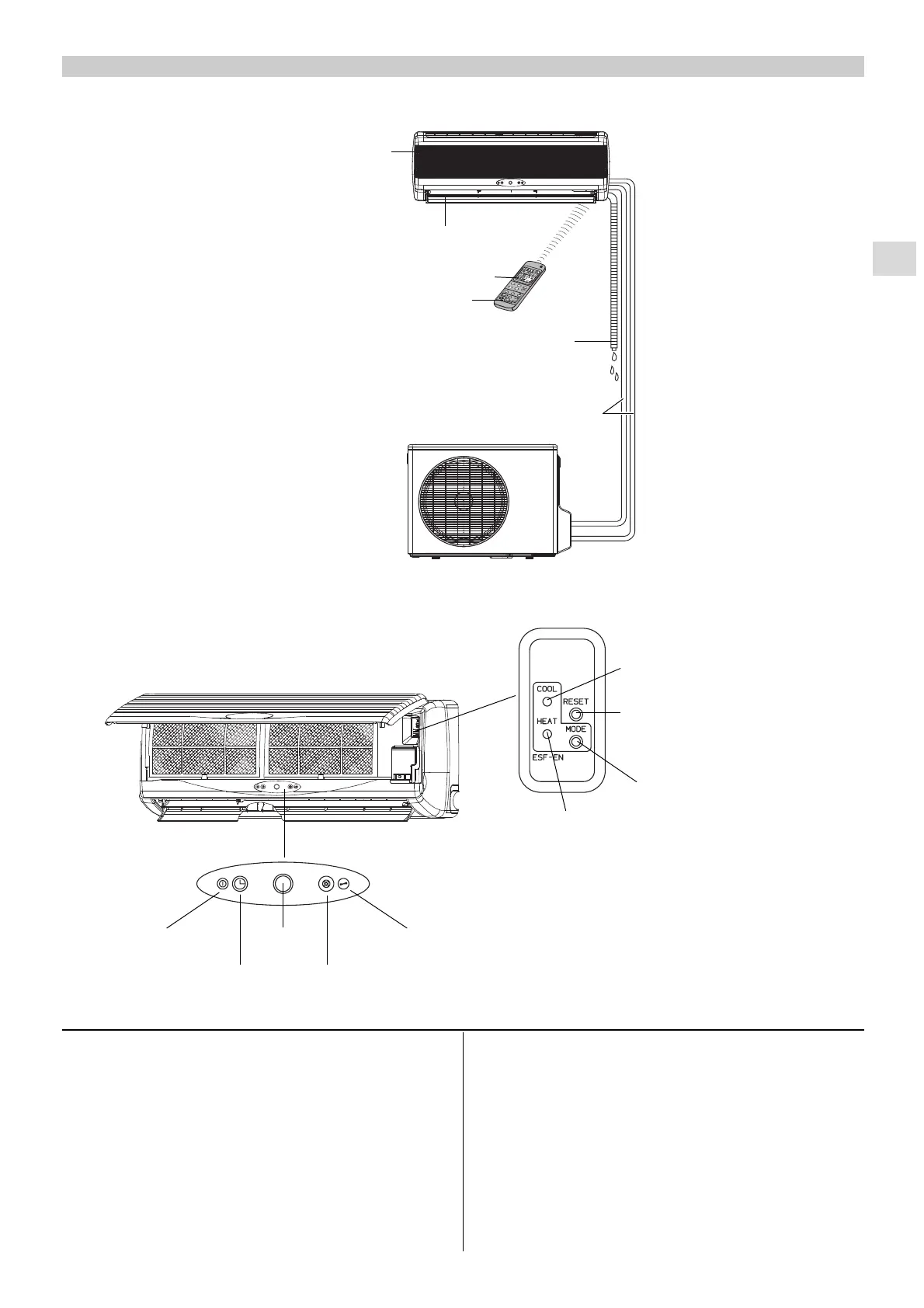
NAME OF PARTS AND OPERATION SELECTOR SWITCH
1. Remote control unit.
2. Sensor: Detects the room temperature around the remote
control unit, the air conditioner is controlled accordingly.
3. Air outlet : distributes filtered and treated air into the room.
4. Air inlet : room air is sucked in through filters.
5. Receiver : receives signals transmitted from the remote control.
6. Flexible drain tube: removes condensate.
7. Refrigerant tubes: convey refrigerant between the indoor
and outdoor unit.
8. Operation selector (without remote control): Push the
button to walk through the OFF, COOL and HEAT operation
modes.
EG
4
3
6
INDOO R UNIT
O U T DO OR UNIT
7
1
2
INDOOR UNIT
5
OPERATION lamp
8
TIMER lamp
STANDBY lamp
FILTER lamp
COOL MODE lamp
HEAT MODE lamp
RESET button
(Press to turn off the filter lamp and
cancel the buzzer announcer)

Related product manuals