EasyManua.ls Logo

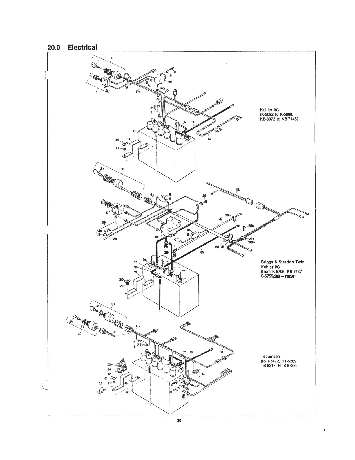
Argo V697-55 - Wiring Diagrams and Schematics; Wiring Diagram: Models T, TB, HT, HTB, KB, K, S, SB; Wiring Diagram: Argo Standard & Heavy Duty

Argo V697-55
52 pages
Print Icon
To Next Page IconTo Next Page
To Next Page IconTo Next Page
To Previous Page IconTo Previous Page
To Previous Page IconTo Previous Page
Loading...
Electrical System Argo Service Manual
Ontario Drive & Gear Limited www.odg.com
PH.(519)- 662-2840 FAX (519)- 662-2421
ES-22
Models T, TB, HT, HTB FROM 1977 KB FROM 1981-86 K FROM1983 S FROM 1986 SB FROM 1987

Table of Contents

Related product manuals