EasyManua.ls Logo

Ariston Thermo 12P CA-E - Caractéristiques Techniques; Dimensions Dencombrement

Ariston Thermo 12P CA-E
Print Icon
To Next Page IconTo Next Page
To Next Page IconTo Next Page
To Previous Page IconTo Previous Page
To Previous Page IconTo Previous Page
Loading...
26
FR
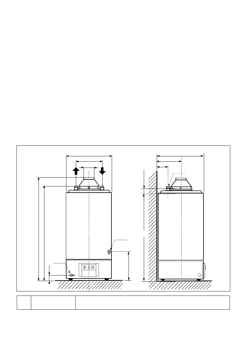
A M
B N
E
H
b1b2
B
F
G
C
D
78
ø 3/4"
ø 1/2"
3/4" G
d
c
e
1
CARACTÉRISTIQUES TECHNIQUES
L’appareil est constitué de:
une cuve protégée à l’interne par une couche d’émail vitri é et dotée d’une anode de protec-
tion longue durée contre la corrosion;
un revêtement externe en tôle péinte;
une isolation en mousse de polyuréthanne à haute densité (sans CFC) qui réduit les pertes
thermiques;
un coupe tirage;
une valve gaz complète de: thermostat réglable sur plusieurs positions, un système de sécu-
rité à thermocouple, un limiteur de température qui interrompt l’alimentation de gaz en cas de
fonctionnement anormal;
un brûleur circulaire silencieux en acier inox, adaptable à tous les types de gaz;
un groupe de sécurité homologué comprenant:
- une soupape tarée à 7 bars;
- un clapet anti-retour
- un dispositif rationnel de vidange;
un allumage piézo-électrique;
• un dispositif de sécurité controlant l’évacuation des gaz brûlés.
DIMENSIONS D’ENCOMBREMENT
FR
CATÉGORIE II
2H3+
Tipo B11 BS
POUR APPAREILS PRÉDISPOSÉS POUR FONCTIONNER AU GAZ NATUREL G20-G25 ADAPTABLES POUR
FONCTIONNER AU GAZ LIQUIDE G30-G31

Related product manuals