EasyManua.ls Logo

Ariston CP 059 MD AUS - The Maxioven; Oven Cooking Functions

Ariston CP 059 MD AUS
12 pages
Print Icon
To Next Page IconTo Next Page
To Next Page IconTo Next Page
To Previous Page IconTo Previous Page
To Previous Page IconTo Previous Page
Loading...
4
AUS
To provide heat only to the bottom or the top part of the
dishes, turn the selector to the position (hot below),
or (hot above).
With the function (hot above and below + fan
assistance) traditional-type cooking (hot above and
below) is combined with fan assistancce.
With this function (fan assisted) heat is transmitted
to the foods through pre-heated air made to circulate inside
the oven by a fan. The oven heats up very quickly so the
food to be cooked may be put into the oven as it is
switched on. Cooking is also possible simultaneously on
both shelves.
The “fast defrosting“ function uses no heating
elements, just the oven light and the fan.
The oven gives nine different heating element combinations;
so the most suitable type of cooking for each dish can
therefore be chosen, with convincing results.
By turning the selector knob “G marked with the symbol
, different cooking functions are obtained, as shown
in the table on the right.
After having selected the cooking function, set the
thermostat knob "H" marked with the symbol °
C to the
temperature required.
For traditional cooking (roasts, biscuits, etc.) in
conventional mode use the function (hot above +
below).
Only put the food to be cooked into the oven when it has
reached the selected temperature and preferably use just
one shelf for cooking.
Grill operation: a high heat output is used for grilling, so
that the surface of the food is immediately browned; this
is particularly indicated for meats which should remain
tender on the inside. To grill, turn the selector knob "G" to
the position (grill), (grill + fan).
During grilling, do not set the thermostat knob to over
200 °C and keep the oven door closed (not even in
the minigrill mode).
Oven light
The oven light comes on automatically when the selector
knob is turned to any of its positions.
Indicator light "S"
It indicates that the oven is heating up. When the light goes
out, the required temperature has been reached inside the
oven.
When the light alternately comes on and goes out, it means
that the thermostat is working properly to maintain the oven
temperature constant.
Cooling ventilation
(CP 859 MT (X) AUS)
In order to cool down the temperature of their exterior, some
models are fitted with a cooling fan that comes on when the
programme selector knob "G" is turned. In this case, the fan is
always on and a normal flow of air can be heard exiting
between the oven door and the control panel.
(CP 059 MD (X) AUS)
In these models, the cooling fan only comes on when the
oven is hot.
Once you have removed the food from the oven, we recom-
mend you leave the oven door ajar for a few minutes: this will
drastically reduce the duration of the cooling cycle. The proc-
ess is controlled by an additional thermostat and can consist
of one or more cycles.
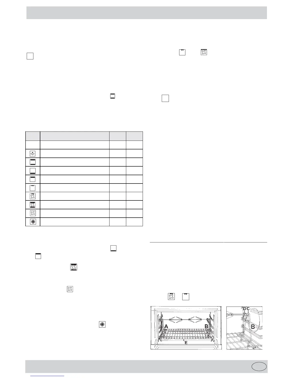
Spit - Rotisserie
This accessory is to be used exclusively when grilling food.
Proceed as follows: insert the meat to be cooked along the
length of the spit rod, securing it with the special adjustable
forks (fig.3a).
Introduce the supports “A” and “B” (fig.3b) into the holes
in the drip tray “E”, rest the rod groove on the seat “C”
and insert the oven rack into the lowest guide of the oven;
now insert the spit rod into the relative hole, moving the
groove forward into seat “D”. Start the grill and the
rotisserie by turning the control knob "G" to the position
with the or symbol.
fig.3a
fig.3b
THE "MAXIOVEN"
Symbol Function
Power
230 V
Power
240 V
0
0) Off - -
1) Oven light 30 W 35 W
2) Top + Bottom heating elements 2350 W 2560 W
3) Bottom heating element 1300 W 1415W
4) Minigrill heating element 1050 W 1145 W
5) Grill heating element 2000 W 2180 W
6) Grill heating element + fan 2050 W 2330 W
7) Top + bottom heating element + fan 2400 W 2615 W
8) Rear round heating element + fan 2850 W 3105 W
9) Fast defrosting 50 W 55 W

Related product manuals