EasyManua.ls Logo

Ariston GENUS PREMIUM EVO HP 65

Ariston GENUS PREMIUM EVO HP 65
64 pages
To Next Page IconTo Next Page
To Next Page IconTo Next Page
To Previous Page IconTo Previous Page
To Previous Page IconTo Previous Page
Loading...
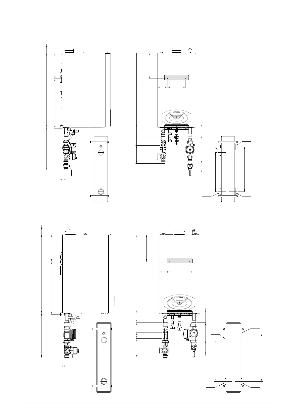
installationinstalación
33
GENUS PREMIUM EVO HP 85/100
GENUS PREMIUM EVO HP 85/100
GENUS PREMIUM EVO HP 85/100
GENUS PREMIUM EVO HP 85/100
54890513
75
307595,5
540
470
221
(2x)
121
(2x)
307
890106113218
10732780
Rp 2"
Rp 2"
Rp 2"
Rp 2"
221
(2x)
122
(2x)
307
540
470
890218
107
10611370
24580
Rp 2"
Rp 2"
Rp 2" Rp 2"
54890
75
507
595,5 307

Table of Contents

Other manuals for Ariston GENUS PREMIUM EVO HP 65

Related product manuals