EasyManua.ls Logo

Asko TD75 - BUILT-IN INSTALLATION REQUIREMENTS; Closet Installation Ventilation; Under-Cabinet Installation; Heat Management and Proximity

Asko TD75
12 pages
Print Icon
To Next Page IconTo Next Page
To Next Page IconTo Next Page
To Previous Page IconTo Previous Page
To Previous Page IconTo Previous Page
Loading...
7
Customer Care Center, 1-800-898-1879, www.askousa.com
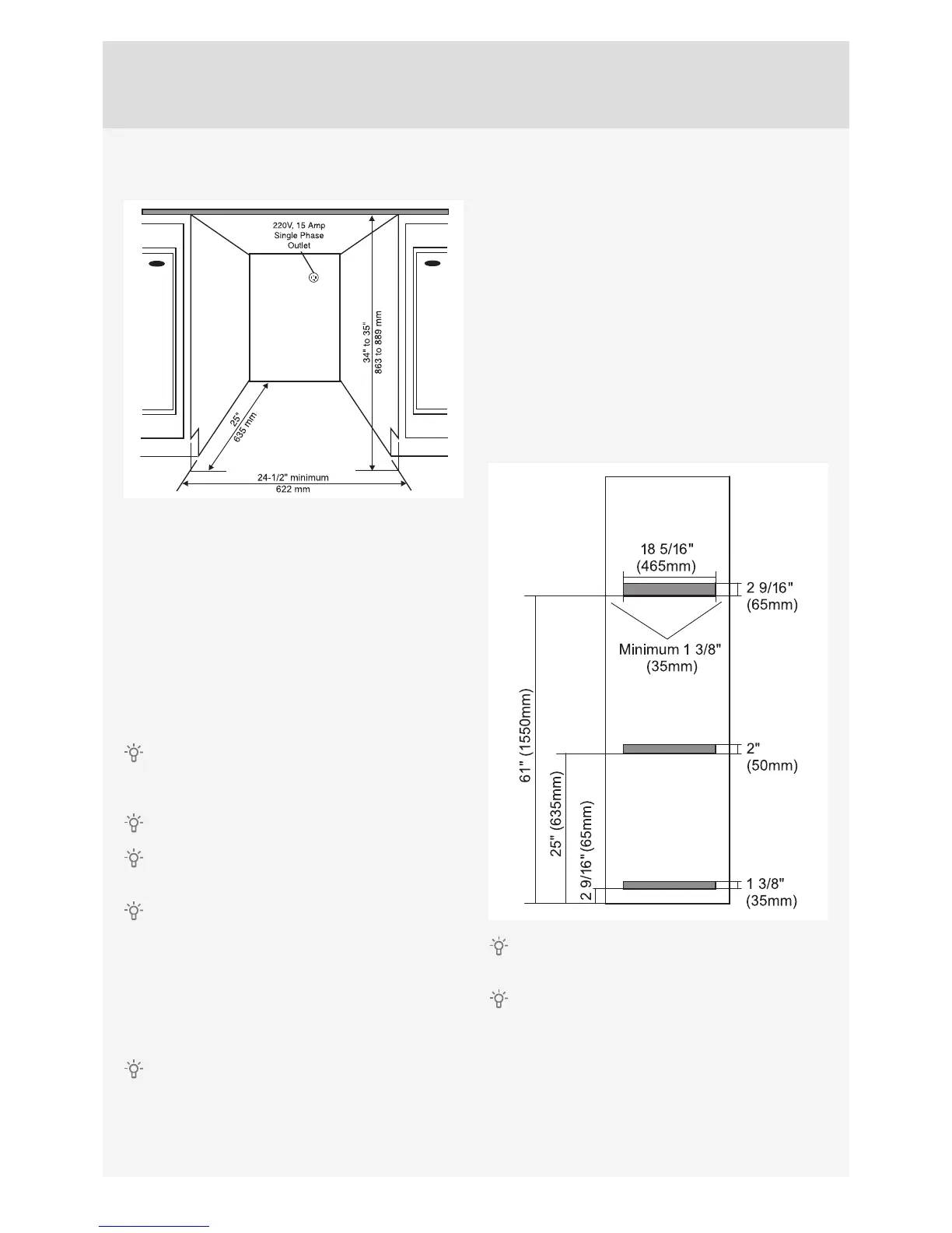
BUILT-IN
ASKO dryers can be installed beneath a cabinet
or worktop with a minimum height of 34” (864
mm). There must be a gap of about 1/2” (12 mm)
all around the machine and a minimum gap of 1"
(25 mm) between the rear edge of the machine top
panel and the back wall. The opening width must be
at least 24-1/2” (622 mm). The condensing models
work best when they have good air circulation.
Install the dryer so the condensed water will
continuously ow into a drain or sink, you will need
a drain outlet behind the unit. The maximum drain
height is 40” (1016 mm).
The height adjustment for the dryer is 33- 1/2” to
34-1/2” (850 mm to 876 mm). Do not raise it higher
than 34-1/2” (876 mm).
It is very important to avoid a buildup of heat.
The warm air which is expelled from the rear of
the dryer must be able to dissipate.
Warm air which cannot dissipate could cause a
fault.
A buildup of heat could be avoided by:
Creating a gap for the dryer in the kitchen
furniture plinth facing.
Creating ventilation gaps in the kitchen unit.
When build under, drying times may be longer.
The dryer should not be installed next to a
refrigeration appliance. The warm air expelled from
the rear of the dryer would increase the temperature
around the refrigeration appliance heat exchanger
causing the compressor to run continuously. If it is
not possible to install the dryer anywhere else, then
the refrigeration appliance must be sealed o from
the dryer.
Closet Install- Ventilation Requirements
ASKO's front panel controls make it possible to
install the washers and dryers in a closet. Make
sure there is a ½” (12 mm) minimum clearance
between units and cabinet or wall and a 1" (25
mm) minimum clearance between the rear edge of
the machine top panel and the cabinet or wall. To
ensure proper ventilation, we recommend louvered
doors, particularly for condenser dryers. Otherwise
there must be ventilation openings in the door. See
illustration for minimum ventilation openings below
(gray boxes):
Ensure the dryer door can be opened without
hindrance after installation.
The cool air intake panel at the front of the dryer
must not be blocked or covered. Doing so could
cause a fault.

Other manuals for Asko TD75

Related product manuals