EasyManua.ls Logo

Aspes ATE30S - Page 13

Aspes ATE30S
16 pages
Print Icon
To Next Page IconTo Next Page
To Next Page IconTo Next Page
To Previous Page IconTo Previous Page
To Previous Page IconTo Previous Page
Loading...
1
1
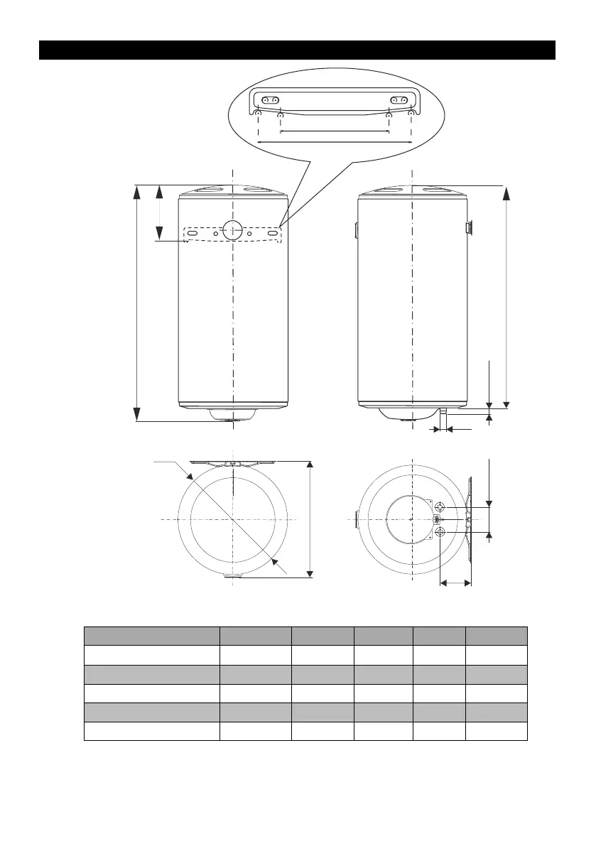
Note: The illustration is a reference image, your device may di󰀨er.
Nota: La ilustración es una imagen de referencia, su aparato podría diferir.
B
E
C
H
H1
G
D
100
125
max 310 mm
min 220 mm
max max
min min
Type D, mm H, mm H1, mm B, mm E, mm
ATE30S 353
555
500 380 167
ATE50S 386 803 748 426 172
ATE80S 386 1205 1150 426 172
ATE050 440 589 538 465 182
ATE080 440 839 788 465 182

Related product manuals