EasyManua.ls Logo

ATI Technologies GasSens - Page 15

ATI Technologies GasSens
49 pages
Print Icon
To Next Page IconTo Next Page
To Next Page IconTo Next Page
To Previous Page IconTo Previous Page
To Previous Page IconTo Previous Page
Loading...
GasSens Gas Detection System Section 1 - Overview
O & M Manual
A14-RK, 8/06 1 - 14
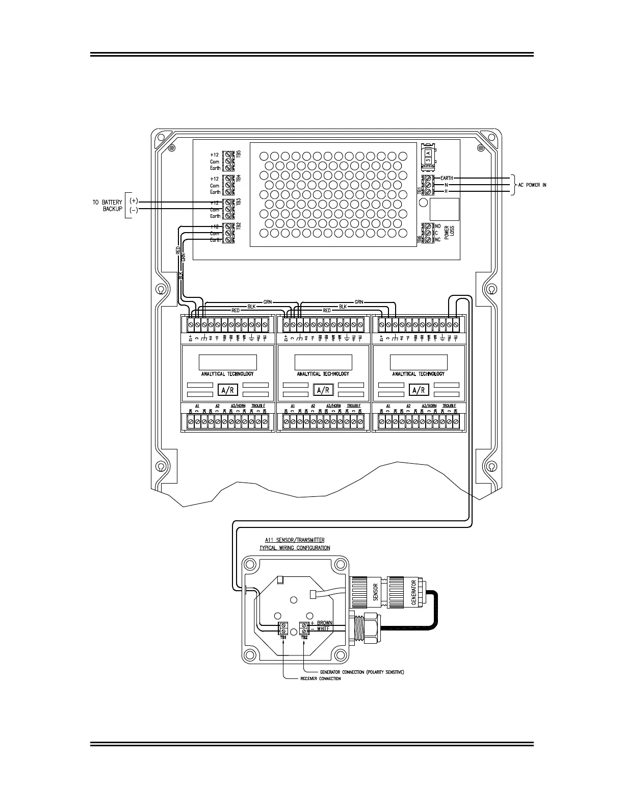
Multipoint systems supplied in Large type enclosures use a 65 watt power supply located in
the top of the enclosure. This power supply is designed to power up to 12 of the A14 receiver
modules. Figure 1-8 shows typical wiring for this type of system.
Figure 1-8: 65W Power Supply to A11 Wiring Diagram (ATI-0544)