EasyManua.ls Logo

ATI Technologies GasSens - Page 9

ATI Technologies GasSens
49 pages
Print Icon
To Next Page IconTo Next Page
To Next Page IconTo Next Page
To Previous Page IconTo Previous Page
To Previous Page IconTo Previous Page
Loading...
GasSens Gas Detection System Section 1 - Overview
O & M Manual
A14-RK, 8/06 1 - 8
THRU HOLES FOR SURFACE
MOUNTING (4) #6 SCREWS
SIDE VIEW
FRONT VIEW
BOTTOM VIEW
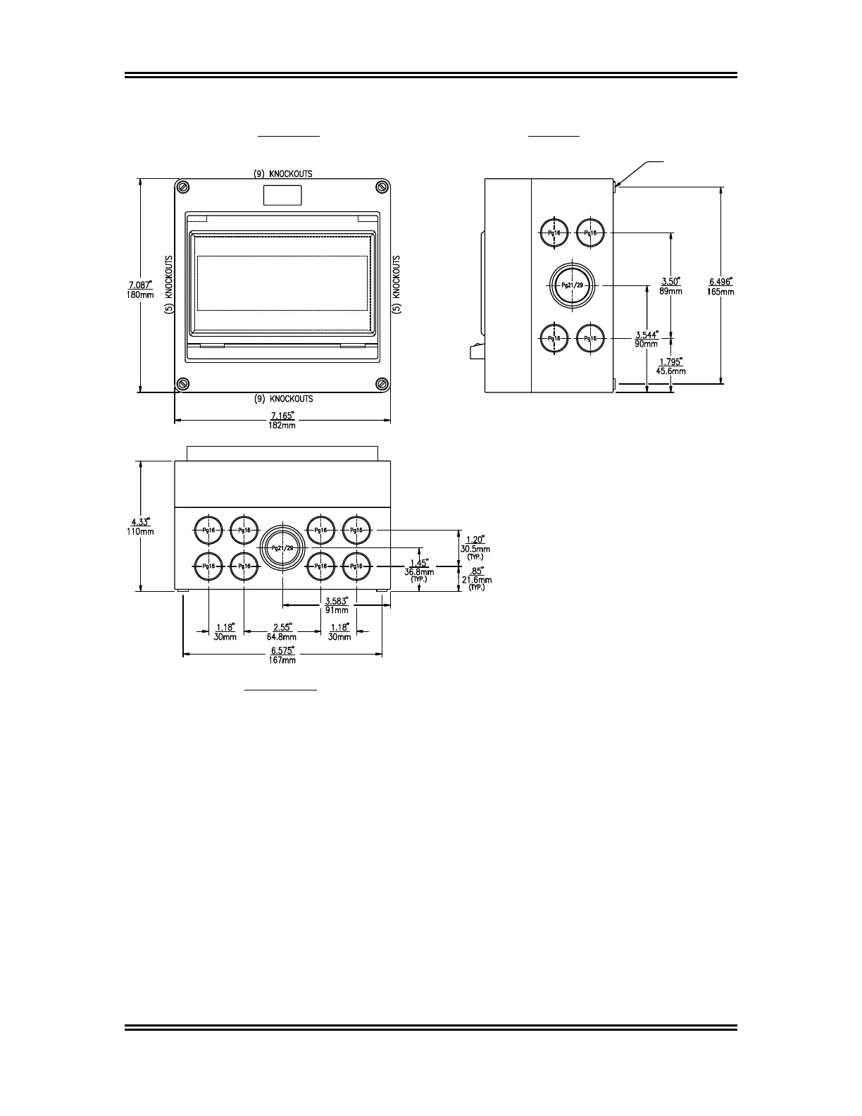
Figure 1-2: Two Module System Enclosure Dimensions (80-0006R)