EasyManua.ls Logo

Atlas Copco CD 850+ - Page 76

Atlas Copco CD 850+
112 pages
Print Icon
To Next Page IconTo Next Page
To Next Page IconTo Next Page
To Previous Page IconTo Previous Page
To Previous Page IconTo Previous Page
Loading...
Instruction Book
75 9829 2115 69
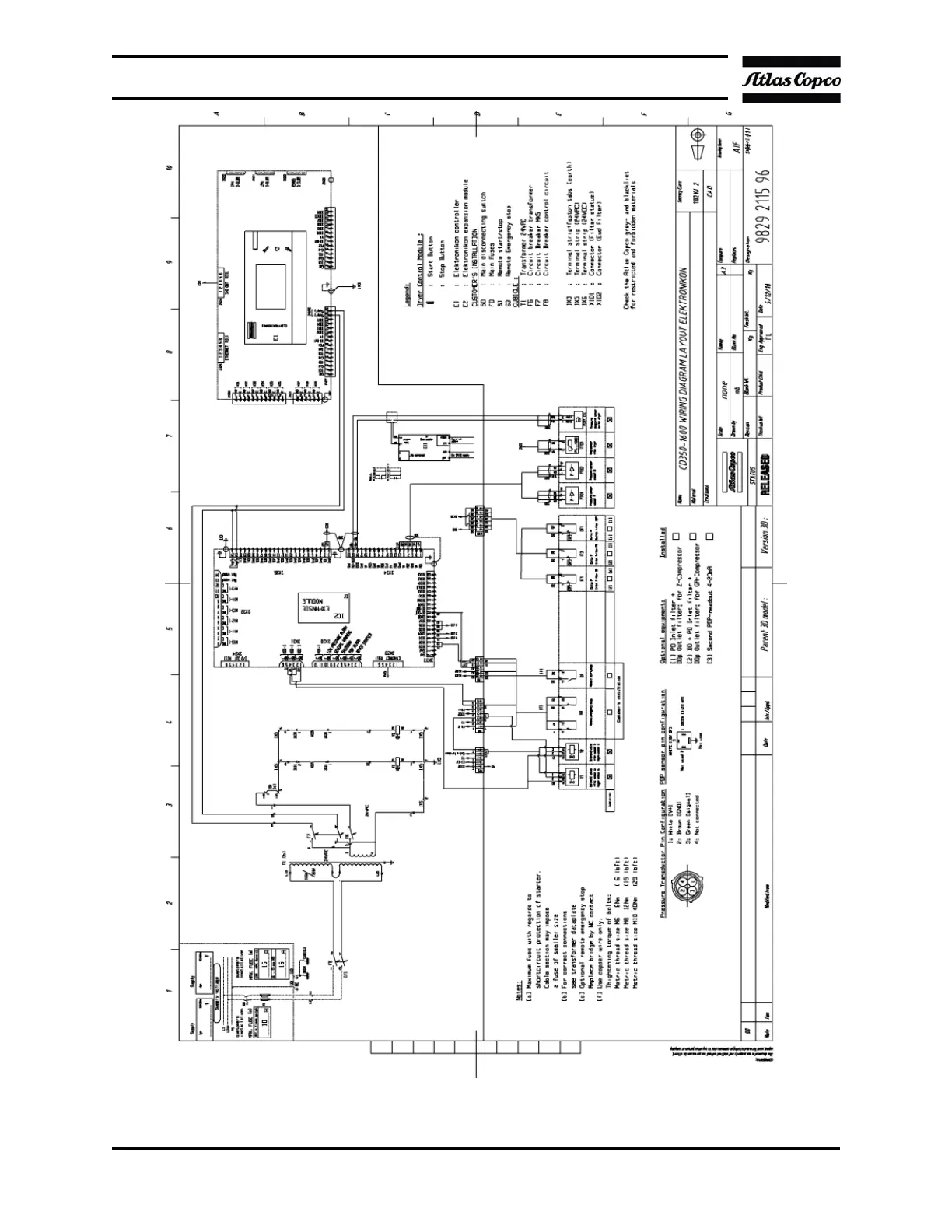
Elektronikon Wiring Diagram

Related product manuals