EasyManua.ls Logo

Atlas Copco LE2

Atlas Copco LE2
74 pages
To Next Page IconTo Next Page
To Next Page IconTo Next Page
To Previous Page IconTo Previous Page
To Previous Page IconTo Previous Page
Loading...
Instruction book
(11)
(12)
(14)
(3)
(8) (4)
9820 2239 71/3
55770D
2-10
2-7
2
3
5
5
7
10
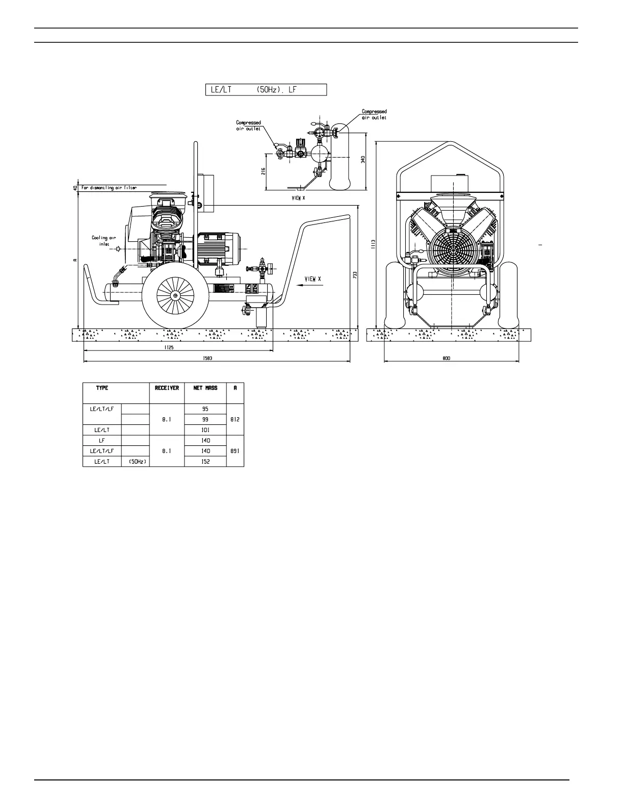
See page 35 for the text on this figure
Fig. 2.19 Dimension drawing, LE/LF/LT Trolley with electrical motor
2920 1585 00 - 33 -

Table of Contents

Related product manuals