EasyManua.ls Logo

Atmos A25 - Connection of Boilers DCxxSP(X), CxxSP and ACxxSP with a Buffer (Accumulation) Tank for Burner Control on the Basis of TS and TV Sensors, Control of the Boiler, Burner and Boiler Pump based on TSV and TK Sensors Function for Automatically Starting the Burner after the Wood Burns Out Old Boilers Version up to Serial Number 343500

Atmos A25
96 pages
Print Icon
To Next Page IconTo Next Page
To Next Page IconTo Next Page
To Previous Page IconTo Previous Page
To Previous Page IconTo Previous Page
Loading...
Operation and maintenance manual - EN
EN
www.atmos.cz
EN-23
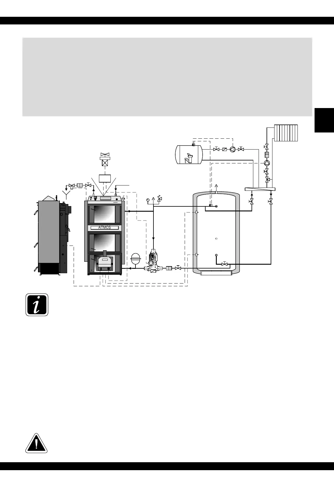
16. Connection of boilers
DCxxSP(X), CxxSP and ACxxSP
with a buffer (accumulation) tank for burner control on the
basis of TS and TV sensors, control of the boiler, burner
and boiler pump based on TSV and TK sensors
Function for automatically starting the burner after the
wood burns out
Old boilers version up to serial number 343500
INFO - The TK sensor on the boiler, waste gas sensor TSV on the side of the flue pipe,
sensors TV and TS on the buffer (accumulation) tank, all connected directly to the burner.
The AD03 module is inserted under the instrument hood of the boiler and is connected to
the terminal board of the boiler (AD03 module - LC clamp - pump, LA clamp - fan), where it
controls the extraction fan of the boiler and the pump in the boiler circuit. On the switching
switch is placed special adapter for boiler DCxxSP.
Required accessories (not part of the burner): for the boiler (old version till serial number 343500),
burner and the conveyor is necessary to buy this accessory - AD03 module (P0436), three KTF
20 sensors (3x P0431), AGF2 flue-gas sensor up to 400 °C or T7425B1011 up to 300 °C (P0413 or
P0414), special connection for boiler DCxxSP(X), CxxSP (S0725) - recommended for purchase as the
AS 2012 sensor set (P0444)
Boilers model since 2018/2019/2020 have everiting in basic equipment.
System configuration of parameters: S6 = 4, S14 = 13, S15 = 2, S34 = 2
For boilers DCxxSP (EP) we recommend to set S40 = 1 for better operation of the pump in the boiler circuit.
(reserve R - parameter S6 controls the boiler fan, reserve R2 - parameter S14 controls the boiler pump)
WA R N I NG – for boilers DCxxSP(X)/(EP), CxxSP and ACxxSP and boilers with a burner
built in the upper doors, it is not possible to use the function of controlling solar heating
directly from the pellet burner.
Side view
Ts
Tv
termostat
thermostat
40°C - 60°C
MAX. 60°C
filtr
filter
mísící ventil
mixing valve
čerpadlo
pump
obytné místnosti
haritable rooms
tlakoměr, přetlakový ventil,
odvzdušňovací ventil
pressure gauge, safety
valve, deaerator
tlaková
expansní
nádoba
pressure
expansion
vessel
ventil
valve
ventil
valve
ventil
valve
filtr
filter
ventil
valve
bojler TUV
DHW boiler
ventil
valve
ventil
valve
ventil
valve
ventil
valve
vyrovnávací nádrž
buffer tank
500 - 1000 l
odvzdušňovací ventil
deaerator
přívod
supply
2-6 bar
10-15°C
odpad
outlet
ventil / valve
TS131 – 3/4ZA
(WATTS STS20)
A25
Tk
Tsv
(AGF)
boční pohled
side view
Modul
AD03
odtahový ventilátor
extraction fan
Laddomat 22