EasyManua.ls Logo

Avantco MX20 - Electrical Diagram

Avantco MX20
17 pages
Print Icon
To Next Page IconTo Next Page
To Next Page IconTo Next Page
To Previous Page IconTo Previous Page
To Previous Page IconTo Previous Page
Loading...
User Manual
16 www.AvantcoEquipment.com
1
INDEX
Parts Catalog Review .................................................................2
Figure 1 Transmission Case.......................................................3
Figure 2 Planetary Shaft Assembly ............................................4
Figure 3 Transmission Shaft Assembly ......................................5
Figure 4 Worm Gear Assembly Shaft .........................................6
Figure 5 Motor Unit
.....................................................................7
Figure 6 Shift Mechanism...........................................................8
Figure 7 Stand & Bowl Lift unit ...................................................9
Figure 8 Lifter Unit ....................................................................10
Figure 8 Planetary Assembly ....................................................11
Figure 9
Standard Accessories.................................................12
Operation Instruction ................................................................13
Warning and Special Attention..................................................14
Trouble Shooting and Specification ..........................................15
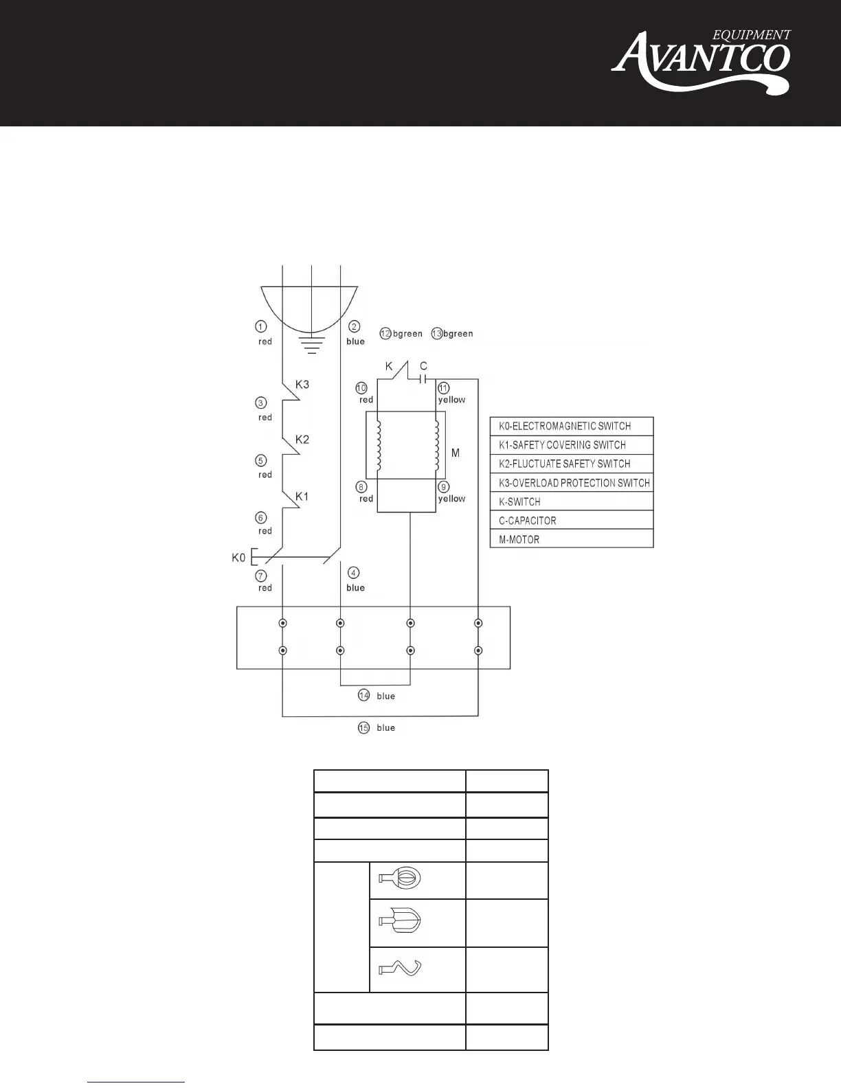
Electric Diagram .......................................................................16
ELECTRIC DIAGRAM /
SPECIFICATIONS
Type B20GA
Mixer (L) 20
Power Supply (V) 230~
Input Power (W) 1100
462
317
197
Maxflour Capacity ( KG ) 5
Mixing
Speed
(RPM)
Electrical Diagram
110
HP 1/2

Related product manuals