EasyManua.ls Logo

AVG BOSTON - Page 11

AVG BOSTON
Print Icon
To Next Page IconTo Next Page
To Next Page IconTo Next Page
To Previous Page IconTo Previous Page
To Previous Page IconTo Previous Page
Loading...

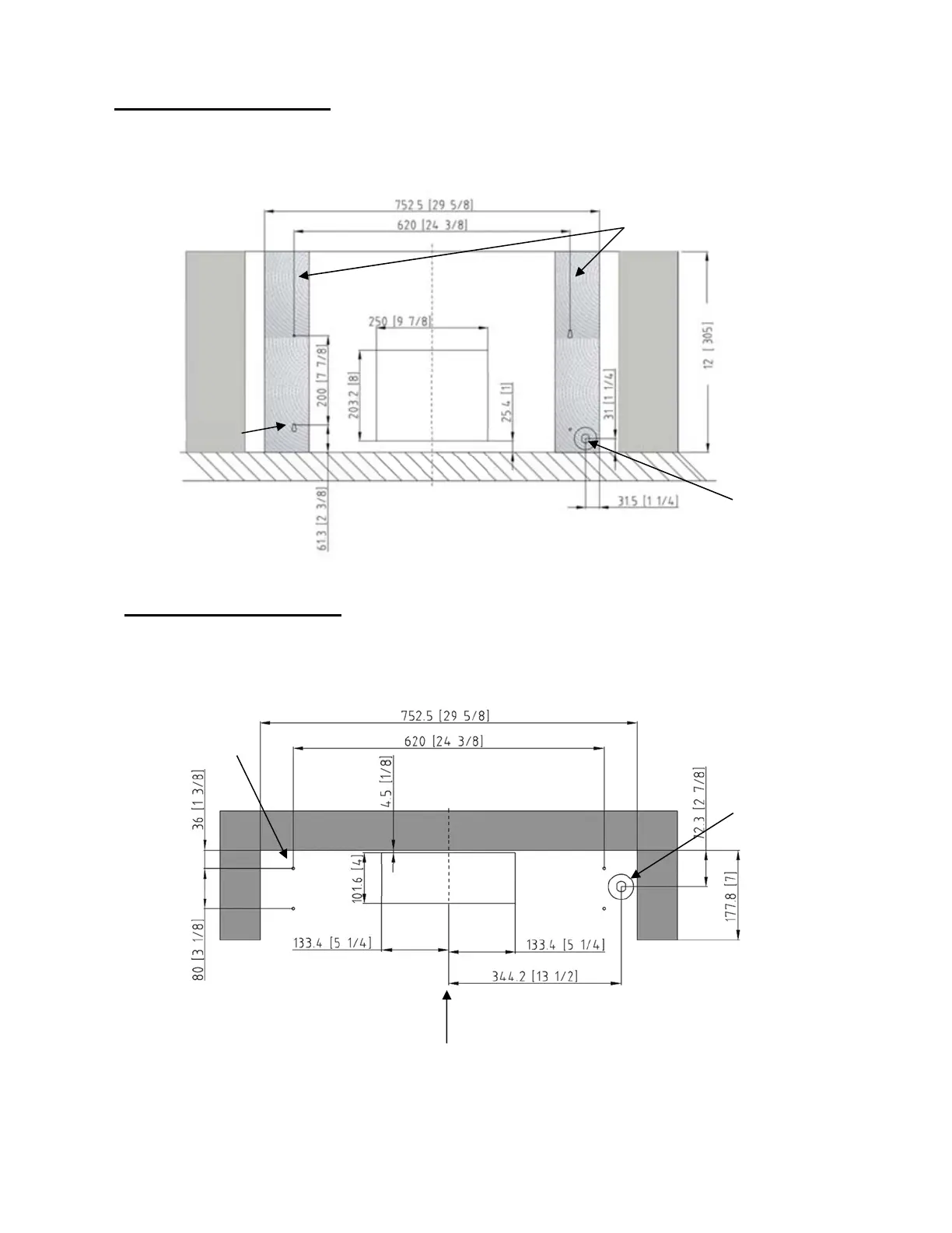
MODÈLE 30" AVB306RS
DIAGRAMMEDELADÉCOUPE
(pourévacuationverticalesurledessus)
11
MODÈLE 30" AVB306RS
DIAGRAMMEDELADÉCOUPE
(pourévacuationhorizontalearrière)
Axecentral
Overturepouraccès
électrique
Axecentral
Visdemontage
Troud’accèsdu
conduit arrière
Bandesde
remplissageenbois
(noncomprises)
Ouverturepouraccès
électrique
Visdemontage
MUR
Troud’accès
conduitdu
dessus