EasyManua.ls Logo

Bambi VT - Wiring Diagrams - Single Phase

Bambi VT
40 pages
Print Icon
To Next Page IconTo Next Page
To Next Page IconTo Next Page
To Previous Page IconTo Previous Page
To Previous Page IconTo Previous Page
Loading...
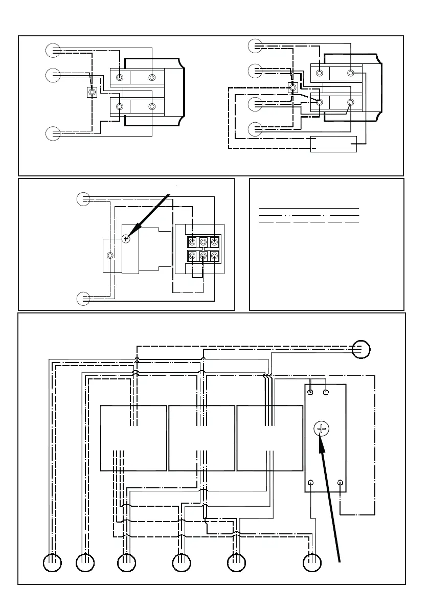
VT[H]75 / VT[H]150 / VT[H]200 /
VT250
VT[H]75D / VT[H]150D / VT[H] 200D /
VT250D
VT300/400
VT300D/400D
DO NOT ALTER!!
Wiring Diagrams - SINGLE PHASE
K
- Live
- Neutral
- Earth
KKEY:
31
A1 15
18 A2
DO NOT ALTER!!
VT300/400/300D/400D
[Electrics enclosure]
Motor 1
Fan 1 Solenoid 1 Fan 2 Solenoid 2
Motor 2
Supply
1
5
To electrics
enclosure
1 - Supply
2 - Solenoid
3 - Earth
4 - Motor
5 - Pressure Switch
6 - Cooling fan
7 - Timer box [VT250D only]

Other manuals for Bambi VT

Related product manuals