EasyManua.ls Logo

Bard W42AC-B - Table 1 Clearance Required for Service Access and Adequate Condenser Airflow; Table 2 Minimum Clearances Required to

Bard W42AC-B
104 pages
Print Icon
To Next Page IconTo Next Page
To Next Page IconTo Next Page
To Previous Page IconTo Previous Page
To Previous Page IconTo Previous Page
Loading...
Manual 2100-692H
Page 12 of 44
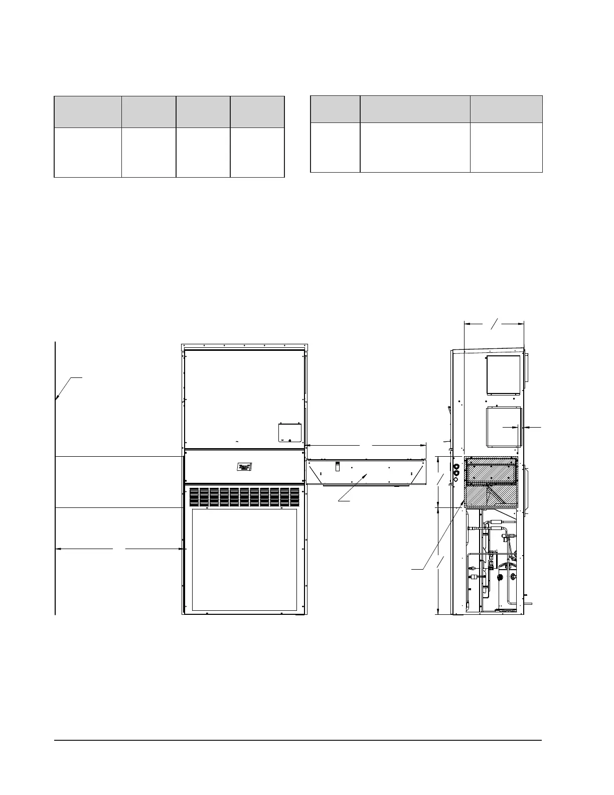
45"
20
3
4
"
2"
37
1
4
"
17
3
4
"
MIS-4042 A
OBJECT OR WALL
IN THIS SECTION OR ANY
OTHER OBSTRUCTION
OF UNIT
OR RIGHT SIDE OF UNIT
CLEARANCE NEEDED ON LEFT
VENT ASSEMBLY
SHOWN OUTSIDE
AVOID LOCATING UNIT DISCONNECT
VENTS CAN BE INSTALLED
FROM EITHER SIDE OF UNIT.
45"
KEEP AREA
CLEAR FOR 45"
IN FRONT OF
SIDE PANEL
* For vent installation and removal, one side of the unit
requires 45" clearance in the vent area. See Figure
12 for clarity.
See Specications Sheet S3583.
TABLE 1
Clearance Required for Service Access and
Adequate Condenser Airow
Model
Left
Side
Right
Side
Discharge –
Front
W42AC
W48AC
W60AC
W72AC
20" 20" 10'
TABLE 2
Minimum Clearances Required
to Combustible Materials
Model Supply Air Duct (1st 3') Cabinet
W42AC
W48AC
W60AC
W72AC
1/4" 0"
FIGURE 12
Vent Installation/Removal Clearance Required

Table of Contents