EasyManua.ls Logo

Belden HIRSCHMANN BRS50 - Page 85

Belden HIRSCHMANN BRS50
112 pages
Print Icon
To Next Page IconTo Next Page
To Next Page IconTo Next Page
To Previous Page IconTo Previous Page
To Previous Page IconTo Previous Page
Loading...
Installation BRS20/22/30/32/40/42/50/52
Release
12
01/2022
85
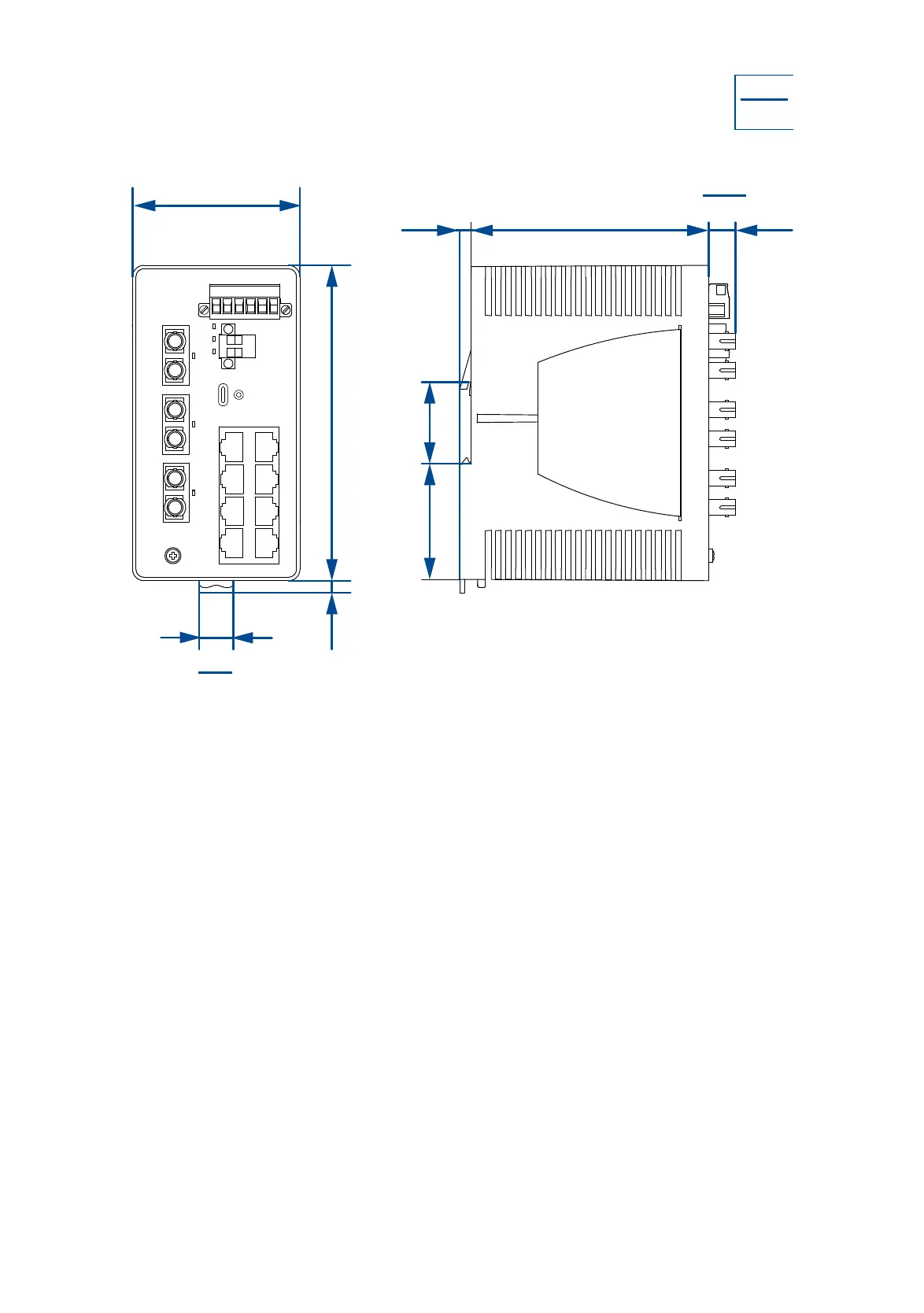
Figure 25: Device variants in medium plastic casing
73
137,5
5,3
103,5
5
50,4 35,6
14,9
2.87
0.59
0.21 5.41
0.2 4.07
1.41.97
11,8
0.46
mm
inch

Table of Contents

Related product manuals