EasyManua.ls Logo

Belimo LRB24-SR - Wiring Diagrams and Application Notes; Installation Notes; Application Notes; Live Electrical Components Warning

Belimo LRB24-SR
2 pages
Print Icon
To Previous Page IconTo Previous Page
To Previous Page IconTo Previous Page
Loading...
800-543-9038 USA 866-805-7089 CANADA 203-791-8396 LATIN AMERICA
23
N40013 - 06/11 -
S
ubject to change.
©
Belimo Aircontrols (U
S
A), Inc
.
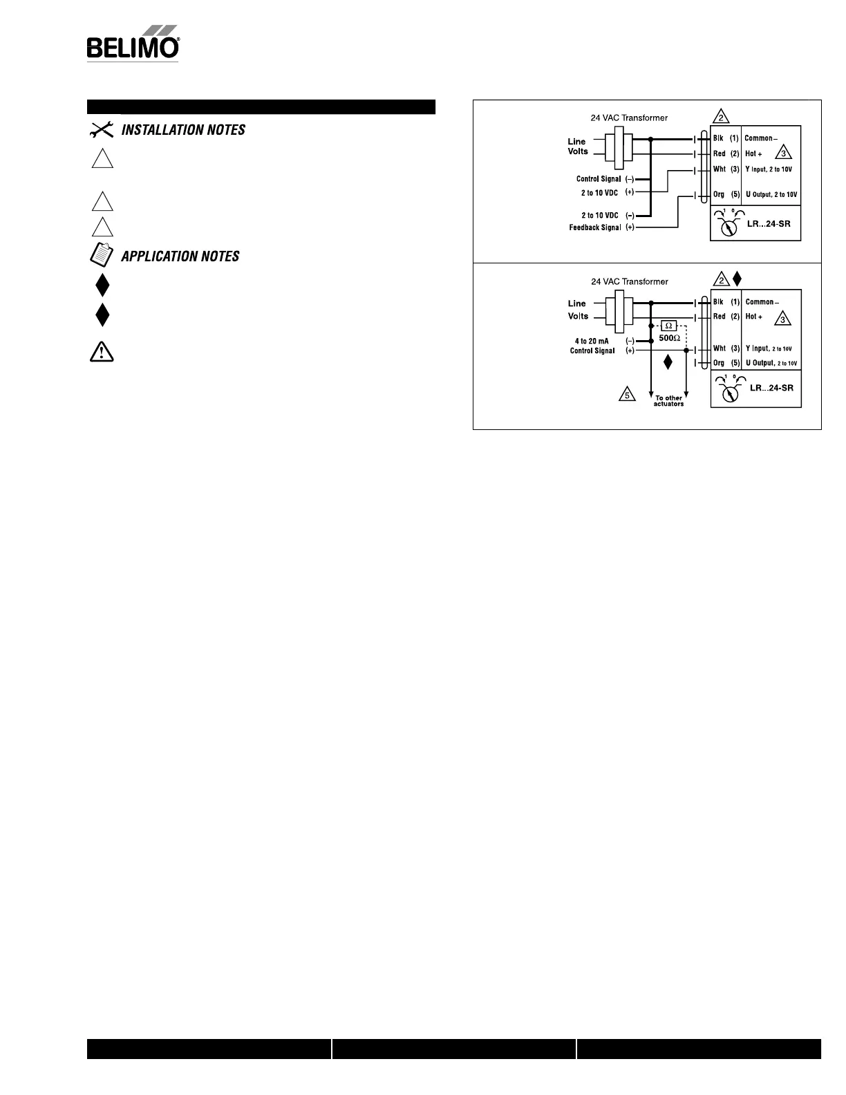
Wiring Diagrams
2
C
A
U
TI
ON
Equipment dama
g
e
!
Actuators may be connected in parallel
.
P
ower consumpt
i
on an
d
i
nput
i
mpe
d
ance must
b
e o
b
serve
d
.
3
Actuators ma
y
also be powered b
y
24 VDC
.
5
Only connect common to neg. (–) leg of control circuits.
Meets cULus or UL and CSA re
q
uirements without the
need o
f
an electrical ground connection.
The ZG-R01 500 Ω resistor converts the 4 to 20 mA control signal to 2
to 10 VDC, up to 2 actuators ma
y
be connected in parallel.
W
ARNIN
G
L
ive Electrical
C
omponents
!
During installation, testing, servicing and troubleshooting of this product, it ma
y
be necessary to work with live electrical components. Have a quali
ed licensed electrician
or ot
h
er
i
n
di
v
id
ua
l
w
h
o
h
as
b
een proper
l
y tra
i
ne
d
i
n
h
an
dli
ng
li
ve e
l
ectr
i
ca
l
components
perform these tasks. Failure to follow all electrical safety precautions when exposed to live
electrical components could result in death or serious in
j
ur
y
.
LR...24-
S
R Actuators, Proportiona
l
W2
65
-LR-
08
2
to 10 VD
C
control
W2
65
-LR-
08
4 to
20
mA control

Other manuals for Belimo LRB24-SR

Related product manuals