EasyManua.ls Logo

Benchmark BG6250E - HOW TO SYNC A NEW REMOTE (REMOTE PAIRING)

Benchmark BG6250E
62 pages
Print Icon
To Next Page IconTo Next Page
To Next Page IconTo Next Page
To Previous Page IconTo Previous Page
To Previous Page IconTo Previous Page
Loading...
47
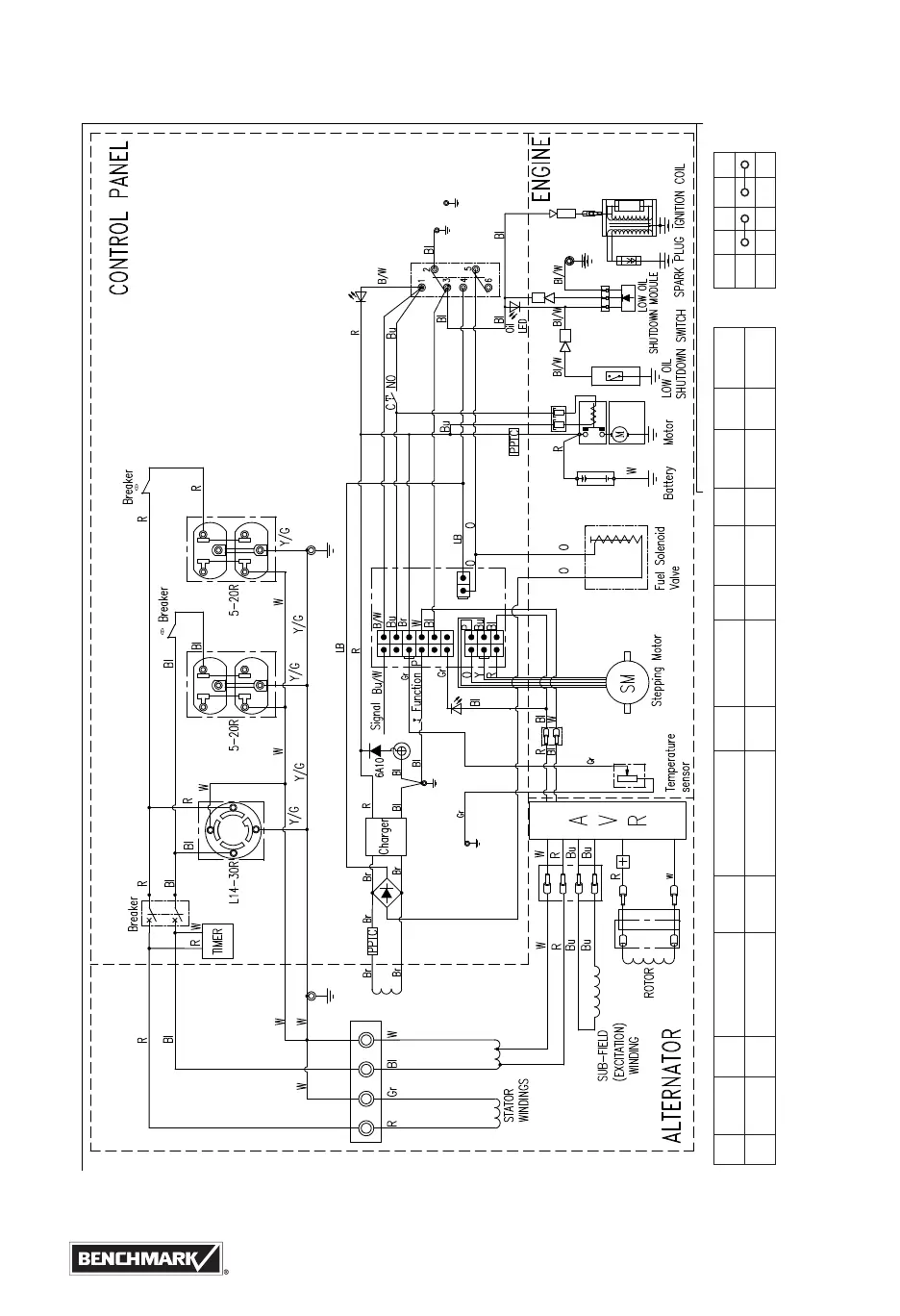
WIRING DIAGRAM BG6250E
Black
Brown
Bl
Br
Yellow/Green
Orange
Y/G
O
Brown/Red
Black and White
Br/R
Bl/W
Blue
Light Blue
Bu
LB
Green
Gray
G
Gr
W WhiteBlack
Red
Bl
R
ENGINE SWITCH CONNECTIONS
OFF
IG E FS G
ON

Other manuals for Benchmark BG6250E

Related product manuals