EasyManua.ls Logo

BENETEAU 331 - Electrical System Layouts and Wiring

BENETEAU 331
73 pages
Print Icon
To Next Page IconTo Next Page
To Next Page IconTo Next Page
To Previous Page IconTo Previous Page
To Previous Page IconTo Previous Page
Loading...
BENETEAU 331 Page 45 of 73
Jan. 10, 2003
rev 02
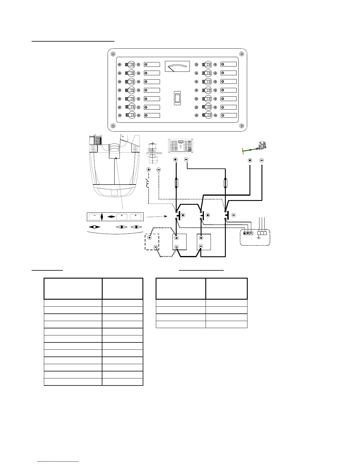
ELECTRICITY LAY OUT
12V PANEL 110/220V PANEL
FUNCTION BREAKER
AMPERAGE
(Amp)
FUNCTION BREAKER
AMPERAGE
(Amp)
Navigation Light 10
Anchor Light 5 Water Heater 15
Steaming Light 5 Battery Charger 10
Deck Light 10 Outlets 15
Cabin Lights 15
Fresh Water Pump 10
Bilge Pump 10
Refrigeration 10
Gas Valve 5
Shower Pump 10
Instruments 5
Spare qty 3 10
110V
battery charger
123
GENERAL BATT. 2BATT. 1
Fus.
100A
Fus.
100A
OFF
ON
DC VOLTS
816
10A
BATTERY CONDITION
BATTERY TEST
BENETEAU
NAV LTS
ANCHOR
LT
STEAMING
LT
DECK LIGHT
REFRIG
5A
10A
10A
5A
10A
5A
FRESH
WATER PUMP
BILGE PUMP
GAS VALVE
SHOWER PUMP
INSTRUMENTS
15A
10A 10A
10A
10A
CABIN LIGHTS
SPARE
SPARE
SPARE
5A
10A
10A
BENETEAU
5A
10A
10A
5A
10A
5A
15A
10A 10A
10A 10A
5A
10A

Related product manuals