EasyManua.ls Logo

Beninca DU.50 - Page 6

Beninca DU.50
18 pages
Print Icon
To Next Page IconTo Next Page
To Next Page IconTo Next Page
To Previous Page IconTo Previous Page
To Previous Page IconTo Previous Page
Loading...
6
7
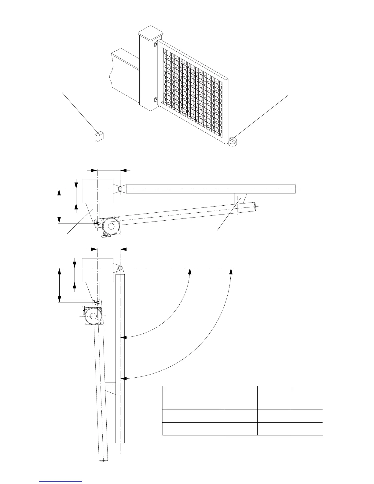
Apertura - Opening
Öffnung - Ouverture
Abertura - Otwierani
e
A
(mm)
90°
110°
170
170
B
(mm)
170
170
C
(mm)
100
100
Fig.2
Fig.1
Arresto in chiusura.
Stop when closing.
Endanschlag zur Schließung.
Arrêt en fermeture.
Tope de cierre.
Chwytak blokujący podczas zamykania.
Arresto in apertura.
Stop when opening.
Endanschlag zur Öffnung.
Arrêt en ouverture.
Tope en apertura.
Chwytak blokujący podczas otwierania.
B
B
90°
105°
max
A
C
A
C
S
P

Related product manuals