EasyManua.ls Logo

Bernini Be42 - Section 19.0 Wiring Recommendations; Power Supply and Sensor Wiring Best Practices

Default Icon
28 pages
Print Icon
To Next Page IconTo Next Page
To Next Page IconTo Next Page
To Previous Page IconTo Previous Page
To Previous Page IconTo Previous Page
Loading...
Be42 OEM's Manual V5.0.XX - December - 2010 page 27
27
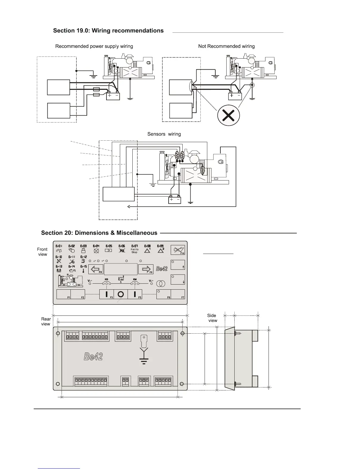
224 mm
Cut-out 190x93mm
186 mm
45 mm
Miscellaneous
Shipping Dimensions: 130x250x60mm
Shipping Weight: 880Gr.
Connectors: removable Plug & Socket
Grounding: 1/4" Blade terminal
14
mm
204 mm
105 mm
91 mm
84 mm
Ground
connection
Electric panel
Battery charger
(see NOTE)
Fuses
NOTE
the separation of the battery
charger wires is a mandatory
requirements in case of
switching or SCR chargers
Electric panel
Battery charger
STOP
EngineA V Hz / R.P.M. h / Prog.
F4
START
MAN OFF
AUTO
TEST
Be42
Be42
Be42
Fuel sensor
Temperature sensor
Ground reference
Oil sensor
The separation of AC and DC
cables is strongly recommended