EasyManua.ls Logo

Bertazzoni REF31BMFIX - Page 30

Bertazzoni REF31BMFIX
49 pages
Print Icon
To Next Page IconTo Next Page
To Next Page IconTo Next Page
To Previous Page IconTo Previous Page
To Previous Page IconTo Previous Page
Loading...
6
Installez votre nouvel appareil
Avant d'utiliser l'appareil pour la première fois,
veuillez tenir compte des points importants
suivants.
AVERTISSEMENT
Pour une installation correcte, ce frigérateur
doit être placé sur une surface plane de matériau
dur de la me hauteur que le reste du plancher.
Cette surface doit être assez solide pour supporter
un réfrigérateur chargé à pleine capacité.
Les rouleaux, qui ne sont pas des roulettes/roues
pivotantes, ne doivent être utilisés que pour les
déplacements vers l'avant ou vers l'arrière. Le
déplacement latéral du réfrigérateur peut
endommager votre plancher et les rouleaux.
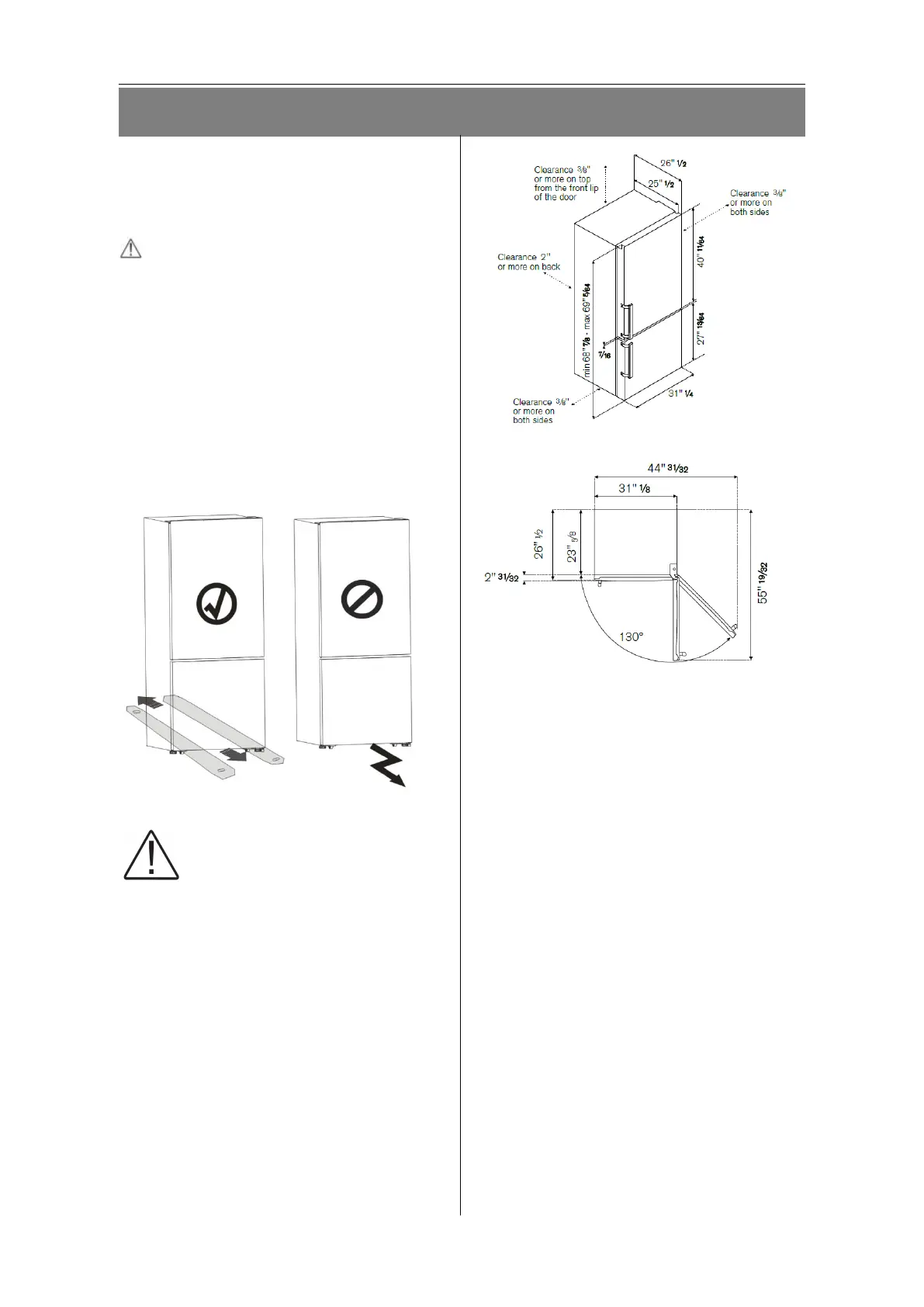
Ventilation de l'appareil
Afin d'améliorer l'efficacité du
système de refroidissement et
d'économiser de l'énergie, il est
nécessaire de maintenir une ventilation adéquate
autour de l'appareil pour dissiper la chaleur. Pour
cette raison, suffisamment d'espace libre devrait
être disponible autour du réfrigérateur.
Suggestion :
Il est recommandé d'avoir au moins 2 pouces de
dégagement entre l'arrière du frigérateur et le
mur, au moins 3/8 pouces de dégagement à partir
de son dessus, au moins 3/8 pouces de son côté
vers le mur et un espace libre devant pour
permettre aux portes fraîches de s'ouvrir à 130°.
Comme le montrent les diagrammes suivants.
Remarque :
Placez votre appareil dans un endroit sec pour
éviter l'humidité.
N’exposez pas l'appareil à la lumière directe du
soleil, à la pluie ou au gel. Placez l'appareil à
l'écart de sources de chaleur telles que les poêles,
le feu ou les appareils de chauffage.
Mise à niveau de l'appareil
Pour assurer une mise à niveau et une
circulation d'air suffisante dans la partie
inférieure arrière de l'appareil, il peut être
nécessaire d'ajuster les pieds inférieurs. Vous
pouvez les régler manuellement ou à l'aide d'un
outil approprié.
Pour permettre aux portes de se fermer
automatiquement, inclinez le haut vers l'arrière de
3/8 - 5/8 pouces (10mm~15mm).

Related product manuals