EasyManua.ls Logo

Bertazzoni REF31BMFIX - Appliance Installation and Placement; Installation Surface and Roller Guidelines; Ventilation and Airflow Requirements; Leveling and Door Adjustment

Bertazzoni REF31BMFIX
49 pages
Print Icon
To Next Page IconTo Next Page
To Next Page IconTo Next Page
To Previous Page IconTo Previous Page
To Previous Page IconTo Previous Page
Loading...
6
Installing Your New Appliance
Before using the appliance for the first
time, Please take note of the following
important points.
WARNING
For proper installation, this refrigerator
must be placed on a level surface of hard
material that is the same height as the rest
of the flooring. This surface should be
strong enough to support a fully loaded
refrigerator.
The rollers, which are not
castors/swiveling wheels, should be only
used for forward or backward movement.
Moving the refrigerator sideways may
damage your floor and the rollers.
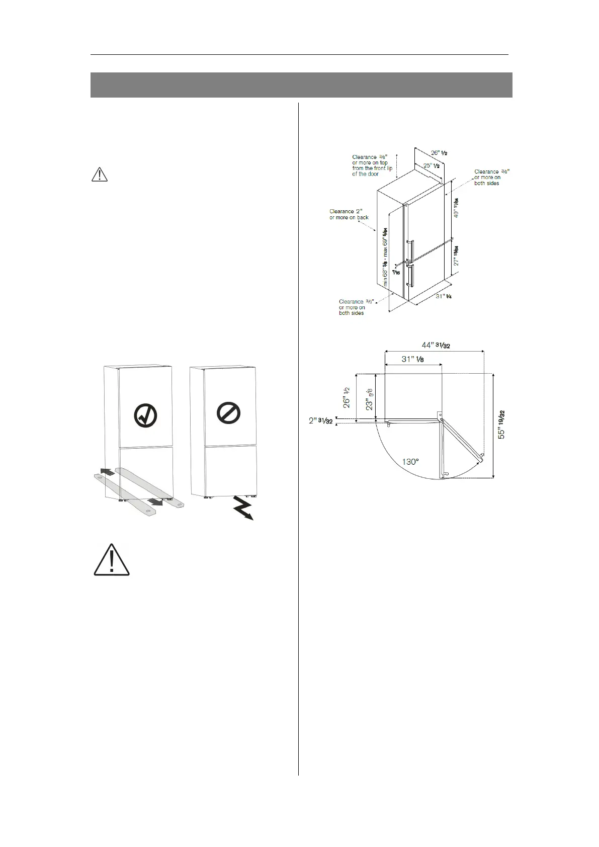
Ventilation of appliance
In order to improve efficiency of
the cooling system and save
energy, it is necessary to maintain proper
ventilation around the appliance
. For this
reason, enough clear
available around the
refrigerator.
Suggestion:
It is advisable for there to be at least 2
inches of clearance from the back of the
fridge to the wall, at least 3/8 inches of
clearance from its top, at least 3/8 inches
from its side to the wall and a clear space
in
front to allow the
doors
to
open
130°. As shown in following diagrams.
Note:
Place your appliance in a dry place to
avoid moisture.
Keep the appliance out of direct sunlight,
rain or frost. Position the appliance away
from heat sources such as stoves, fire or
heaters.
Leveling of appliance
For enough leveling and air circulating in
the lower rear section of the appliance, the
bottom feet may need to be adjusted. You
can adjust them manually or by using a
suitable tool.
To allow the doors to self-close, tilt the
top backwards by 3/8 5/8 inch
(10mm~15mm).
space should be
refrigerator

Related product manuals