EasyManua.ls Logo

Best CC45 - Page 26

Best CC45
60 pages
Print Icon
To Next Page IconTo Next Page
To Next Page IconTo Next Page
To Previous Page IconTo Previous Page
To Previous Page IconTo Previous Page
Loading...
- 26 -
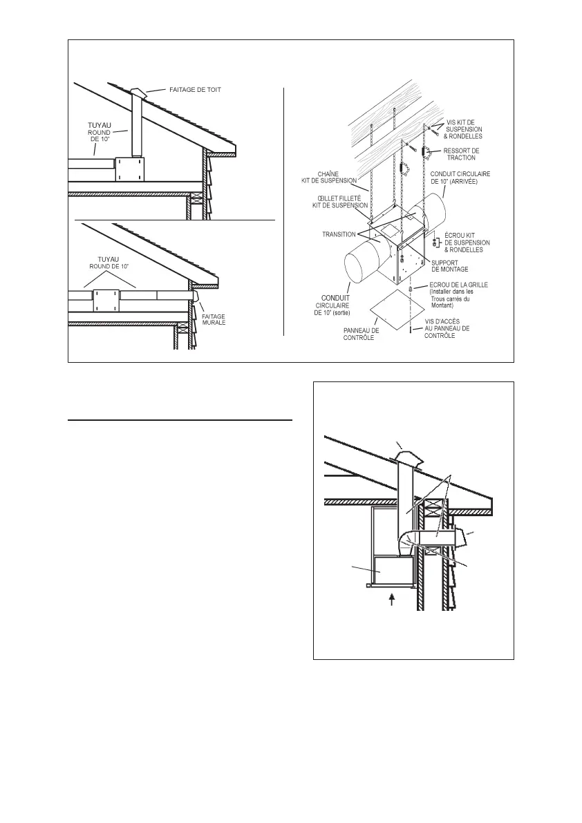
VENTILATEUR IN-LINE
INSTALLER LES
CONDUITS
REMARQUE: pour réduire les risques
d’incendie, utilisez uniquement des
conduits métalliques.
1. Décidez où le tuyau doit être installé, entre
votre hotte et l’extérieur.
2. Un conduit droit et court permettra à votre
hotte de fonctionner d’une façon plus
efficace.
3. Un conduits long avec des coudes et des
transitions réduira le bon fonctionnement
de votre hotte. En utiliser le moins possible.
4. Installez un couvercle sur le toit ou au mur.
Reliez un tuyau en métal rond de 6 au
couvercle et faites-le aller jusqu’à
l’emplacement de votre hotte. Utiliser du
ruban adhésif pour sceller les joints
entre les sections de conduits (Fig.3).
FIGURE 3
24” (61cm)
À 30” (76.2cm)
AU-DESSUS DU PLAN DE
CUISSON
FIGURE 2
CAPUCHON DU TOIT
CAPU-
CHON
MURAL
COUDE
ROUNDE
HOTTE
CONDUIT ROND
DE 6” MIN.

Related product manuals